Bénéficiez des services de nos partenaires locaux soigneusement sélectionnés
pour vous accompagner dans votre parcours d'achat immobilier

Appartement 160m² à niederbronn-les-bains

— Niederbronn-Les-Bains 67110 —
110 000 €
160 m²
6 pièces

Nos partenaires locaux
NIEDERBRONN-LES-BAINS - IMMEUBLE - 160M² - LOCAL - HABITATION

efficity, l'agence qui estime votre bien en ligne, et Marie CHANVRIER, vous proposent cet immeuble offrant un potentiel d'aménagement exceptionnel.

Cet immeuble de 3 niveaux nécessite des travaux de rénovation pour retrouver tout son charme. Avec une surface totale de 160m², il offre de vastes espaces modulables selon vos envies.

Au rez-de-chaussée, se trouvent d'anciens bureaux développant une surface de 42 m², actuellement libres, adaptés à un usage de local commercial ou professionnel.

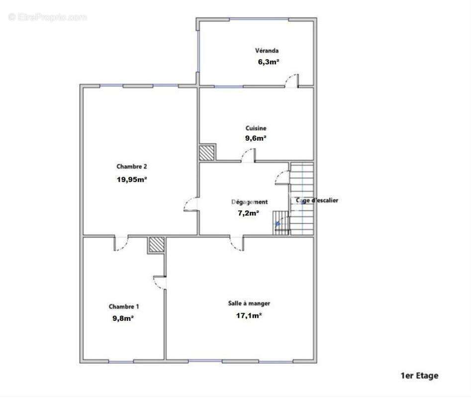
Au premier étage, une entrée, une cuisine séparée, une véranda, deux chambres, ainsi qu'un salon.
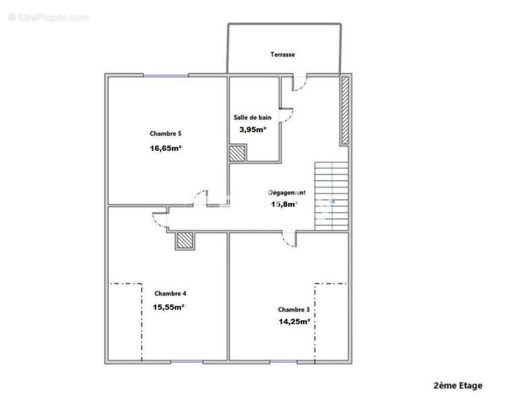
Au deuxième, une salle de bain, trois chambres et une terrasse.

Une cave d'une surface de 15m² complète ce bien, offrant un espace de stockage supplémentaire appréciable.
Des travaux sont à prévoir dans l'ensemble de l'immeuble (isolation, cuisine, sanitaires…), offrant l'opportunité de créer un lieu entièrement adapté à votre projet.
Les informations sur les risques auxquels ce bien est exposé sont disponibles sur le site Georisque : georisques. gouv. fr
Marie Chanvrier - EI - est Agent Commercial mandataire en immobilier, immatriculé au Registre Spécial des Agents Commerciaux du Tribunal de Commerce de Strasbourg sous le n°921667770.
Siège social du mandant : effiCity, 48 avenue de Villiers - 75017 PARIS - Société par Actions Simplifiée, société au capital de 132 373,05 euros, immatriculée au RCS Paris 497 617 746 et titulaire de la Carte professionnelle CPI 75[Coordonnées masquées]02 025 - CCI Paris IDF - Caisse de Garantie : GALIAN Assurances 89 rue de la Boétie 75008 Paris
Voir plus

Référence: 198125
Honoraires à la charge du vendeur.
Barème des honoraires
DPE
A
B
C
D
E
F
G
GES
A
B
C
D
E
F
G

Prêt immobilier

Vous souhaitez connaître votre capacité d’emprunt et trouver le meilleur crédit immobilier ?
Réaliser une simulation gratuite

Appartement à NIEDERBRONN-LES-BAINS
Appartement à NIEDERBRONN-LES-BAINS
Appartement à NIEDERBRONN-LES-BAINS
Appartement à NIEDERBRONN-LES-BAINS
Appartement à NIEDERBRONN-LES-BAINS
Appartement à NIEDERBRONN-LES-BAINS
Appartement à NIEDERBRONN-LES-BAINS
Appartement à NIEDERBRONN-LES-BAINS
Appartement à NIEDERBRONN-LES-BAINS
Appartement à NIEDERBRONN-LES-BAINS
Appartement à NIEDERBRONN-LES-BAINS
Appartement à NIEDERBRONN-LES-BAINS
Appartement à NIEDERBRONN-LES-BAINS
Ce site est protégé par reCAPTCHA la Politique de confidentialité et les Conditions d’utilisation de Google s’appliquent.
Obtenir un prêt immobilier au meilleur taux ?

En poursuivant votre navigation sans modifier vos paramètres, vous acceptez l'utilisation de cookies susceptibles de réaliser des statistiques de visite. Cliquez ici pour plus d'informations