Bénéficiez des services de nos partenaires locaux soigneusement sélectionnés
pour vous accompagner dans votre parcours d'achat immobilier

Studio avec balcon en étage élevé.

— Saint-Denis 93200 —
244 000 €
30 m²
1 pièce
balcon/terrasse

Nos partenaires locaux
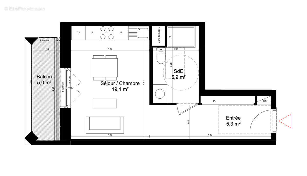
Cet appartement d’une pièce est situé au 9ème étage de la résidence.La surface habitable est de 30,30 m2, comprenant l’ensemble des espaces intérieurs.
L’entrée développe une surface de 5,30 m2 et permet une distribution fonctionnelle du logement.La pièce principale, faisant office de séjour et d’espace nuit, présente une surface de 19,10 m2. Cet espace permet l’aménagement d’un coin salon, d’un espace repas et d’un couchage distinct.
La salle d’eau avec WC développe une surface de 5,90 m2 et est accessible depuis l’entrée, sans empiéter sur la pièce principale.
L’appartement dispose d’un balcon de 5,00 m2, accessible depuis la pièce de vie.
L’appartement s’inscrit dans une résidence organisée autour de plusieurs bâtiments, intégrant des logements et des commerces en rez-de-chaussée.L’ensemble est structuré par des cheminements piétons, des espaces paysagers et des cœurs d’îlot accessibles aux résidents.
Contactez-nous pour plus d'informations !
Images d'illustration, non contractuelles
Voir plus

Bien en copropriété. Nombre de lots : 95.
Barème des honoraires
DPE
A
B
C
D
E
F
G
GES
A
B
C
D
E
F
G

Prêt immobilier

Vous souhaitez connaître votre capacité d’emprunt et trouver le meilleur crédit immobilier ?
Réaliser une simulation gratuite

Appartement à SAINT-DENIS
Appartement à SAINT-DENIS
Appartement à SAINT-DENIS
Ce site est protégé par reCAPTCHA la Politique de confidentialité et les Conditions d’utilisation de Google s’appliquent.
Obtenir un prêt immobilier au meilleur taux ?

En poursuivant votre navigation sans modifier vos paramètres, vous acceptez l'utilisation de cookies susceptibles de réaliser des statistiques de visite. Cliquez ici pour plus d'informations