Bénéficiez des services de nos partenaires locaux soigneusement sélectionnés
pour vous accompagner dans votre parcours d'achat immobilier

Appartement à vendre, dernier étage avec balcon.

— Saint-Denis 93200 —
362 000 €
44 m²
2 pièces
balcon/terrasse

Nos partenaires locaux
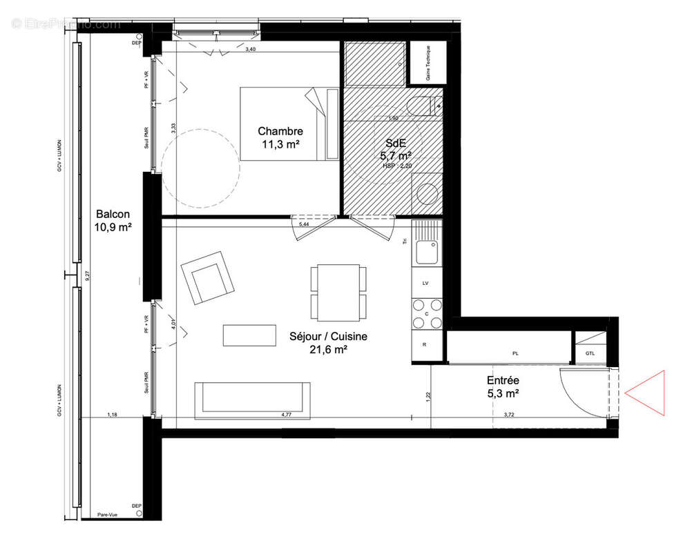
Appartement de deux pièces situé au dernier étage de la residence.La surface habitable est de 43,90 m2, complétée par un balcon de 10,90 m2.
L’entrée de 5,30 m2 dessert l’ensemble du logement.Le séjour avec cuisine intégrée développe une surface de 21,60 m2 et permet l’aménagement d’un espace salon et repas. Cet espace donne un accès direct au balcon.
La chambre, séparée de la pièce de vie, présente une surface de 11,30 m2.La salle d’eau avec WC représente 5,70 m2 et est accessible depuis l’entrée.
L’appartement s’inscrit dans une résidence intégrée à un ensemble urbain structuré, comprenant des logements, des commerces et des espaces paysagers.
Contactez-nous pour plus d'informations !
Images d'illustration, non contractuelles
Voir plus

Bien en copropriété. Nombre de lots : 95.
Barème des honoraires
DPE
A
B
C
D
E
F
G
GES
A
B
C
D
E
F
G

Prêt immobilier

Vous souhaitez connaître votre capacité d’emprunt et trouver le meilleur crédit immobilier ?
Réaliser une simulation gratuite

Appartement à SAINT-DENIS
Appartement à SAINT-DENIS
Appartement à SAINT-DENIS
Appartement à SAINT-DENIS
Ce site est protégé par reCAPTCHA la Politique de confidentialité et les Conditions d’utilisation de Google s’appliquent.
Obtenir un prêt immobilier au meilleur taux ?

En poursuivant votre navigation sans modifier vos paramètres, vous acceptez l'utilisation de cookies susceptibles de réaliser des statistiques de visite. Cliquez ici pour plus d'informations