Bénéficiez des services de nos partenaires locaux soigneusement sélectionnés
pour vous accompagner dans votre parcours d'achat immobilier

Côte d'azur triangle d'or villefranche-sur-mer les marinières appartement vue panoramique mer

— Villefranche-Sur-Mer 06230 —
590 000 €
55 m²
2 pièces
parkingbalcon/terrasseascenseur

Nos partenaires locaux
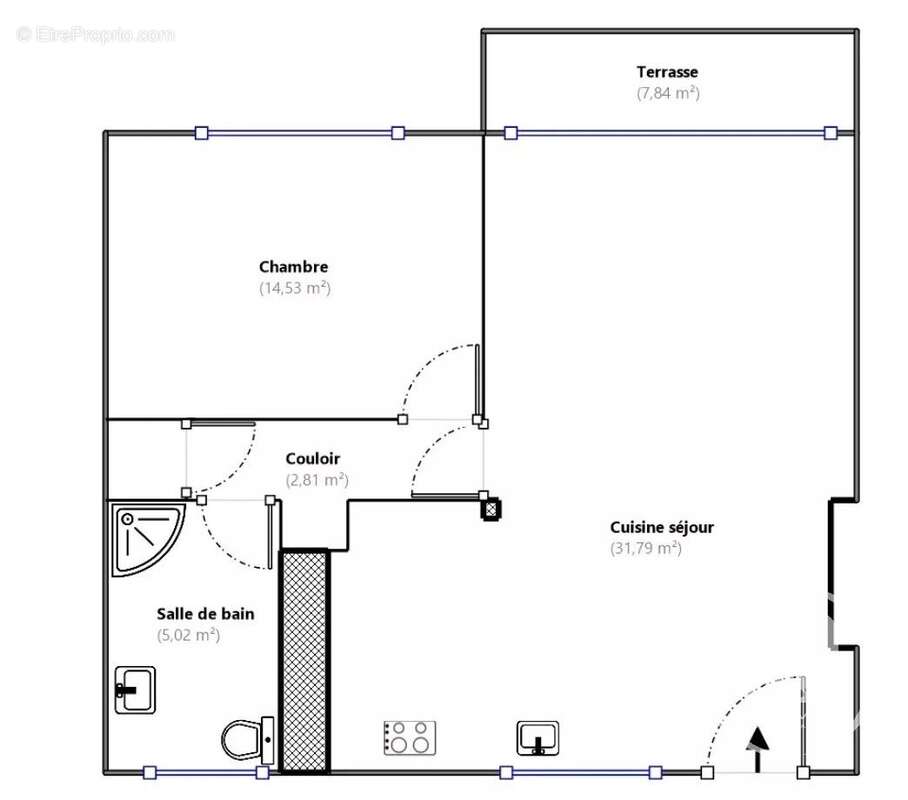
**Villefranche-sur-Mer - Quartier Marinières**

Découvrez cet appartement de 2 pièces situé au 2ème étage avec ascenseur d'une résidence bien entretenue, offrant une vue mer panoramique du vieux Villefranche à Saint-Jean-Cap-Ferrat. Traversant, cet appartement comprend un salon avec cuisine ouverte, une terrasse, une chambre, une salle de douche avec WC, des placards et un couloir.
Une cave avec accès ascenseur de 6m2 complète ce bien

En parfait état, l'appartement, rénové en 2014, est idéal pour une location saisonnière.

**Caractéristiques :**
- Surface : 55 m2
- Charges mensuelles : 85€
- Taxe foncière : 1042€
- Nombre de lots dans la copropriété : 46
- Honoraires à la charge du vendeur

**Avantages :**
- À seulement 5 minutes à pied de la gare SNCF, des plages et de la vieille ville de Villefranche-sur-Mer.
- Proximité des commodités et des transports en commun, idéal pour profiter de la région.

Ne manquez pas cette opportunité unique d'acquérir un bien immobilier de qualité dans un emplacement privilégié.

Voir plus d'informations sur le site internet avec la visite virtuelle - référence : 1895
ou pour organiser une visite, contactez-nous dès maintenant.

#VillefrancheSurMer #AppartementVueMer #ProchePlage #InvestissementLocatif #
Voir plus

Référence: 1895NANN
Barème des honoraires
DPE
A
B
C
D
E
F
G
GES
A
B
C
D
E
F
G

Prêt immobilier

Vous souhaitez connaître votre capacité d’emprunt et trouver le meilleur crédit immobilier ?
Réaliser une simulation gratuite

Appartement à VILLEFRANCHE-SUR-MER
Appartement à VILLEFRANCHE-SUR-MER
Appartement à VILLEFRANCHE-SUR-MER
Appartement à VILLEFRANCHE-SUR-MER
Appartement à VILLEFRANCHE-SUR-MER
Appartement à VILLEFRANCHE-SUR-MER
Appartement à VILLEFRANCHE-SUR-MER
Appartement à VILLEFRANCHE-SUR-MER
Appartement à VILLEFRANCHE-SUR-MER
Appartement à VILLEFRANCHE-SUR-MER
Appartement à VILLEFRANCHE-SUR-MER
Appartement à VILLEFRANCHE-SUR-MER
Appartement à VILLEFRANCHE-SUR-MER
Ce site est protégé par reCAPTCHA la Politique de confidentialité et les Conditions d’utilisation de Google s’appliquent.
Obtenir un prêt immobilier au meilleur taux ?

En poursuivant votre navigation sans modifier vos paramètres, vous acceptez l'utilisation de cookies susceptibles de réaliser des statistiques de visite. Cliquez ici pour plus d'informations