Bénéficiez des services de nos partenaires locaux soigneusement sélectionnés
pour vous accompagner dans votre parcours d'achat immobilier

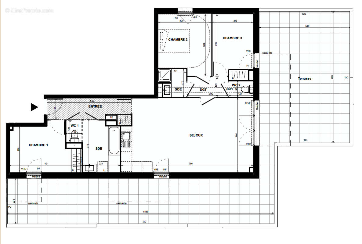
Grande terrasse

— Colomiers 31770 —
357 469 €
86 m²
4 pièces
parkingbalcon/terrasseascenseur

Nos partenaires locaux
Colomiers, GRANDE TERRASSE DE 87,36m2 En dernier étage sur 4 venez découvrir cet appartement T'4 avec une grande terrasse. Composé d'une entrée avec placard, séjour cuisine de 33,69m2 exposé sud-ouest sur terrasse de 87,36m2, une salle de bain-wc, un wc, 2 chambres de 10,86 et 9,11m2 et une suite parentale de 13,55mé salle d'eau incluse. 2 places de parking en sous-sol. TVA 5,50% destiné à la résidence principale sous conditions de ressources zone ANRU (voir en agence) Prestations soignées : carrelage 45*45 au sol, parquet flottant dans les chambres, eau chaude thermodynamique, chauffage électrique .... Situé à moins de 10 min à pied du coeur historique, cet appartement vous assure quiétude à vivre au quotidien, mais aussi connexion aisée à la ville, à son animation et à ses nombreuses commodités : commerces, marché, écoles, infrastructures sportives et culturelles ? Ilcest aussi localisé à 4 min en bus, ou à 16 min à pied, de la gare de Colomiers dont le parvis accueillera prochainement le terminus de la 3e ligne de métro. A la clé : une desserte optimale vers le coeur de Toulouse et les principaux bassins d'emploi de l'est de la métropole ! BIEN NON SOUMIS AU DPE Pour tout renseignement : Féänor MAMEO [Coordonnées masquées]
Voir plus

Référence: TCO-A402

Prêt immobilier

Vous souhaitez connaître votre capacité d’emprunt et trouver le meilleur crédit immobilier ?
Réaliser une simulation gratuite

Appartement à COLOMIERS
Appartement à COLOMIERS
Appartement à COLOMIERS
Appartement à COLOMIERS
Appartement à COLOMIERS
Ce site est protégé par reCAPTCHA la Politique de confidentialité et les Conditions d’utilisation de Google s’appliquent.
Obtenir un prêt immobilier au meilleur taux ?

En poursuivant votre navigation sans modifier vos paramètres, vous acceptez l'utilisation de cookies susceptibles de réaliser des statistiques de visite. Cliquez ici pour plus d'informations