Bénéficiez des services de nos partenaires locaux soigneusement sélectionnés
pour vous accompagner dans votre parcours d'achat immobilier

Grande terrasse

— Toulouse 31400 —
345 900 €
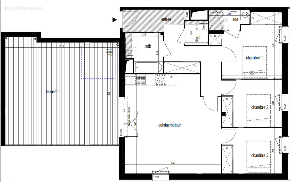
86 m²
4 pièces
parkingbalcon/terrasseascenseur

Nos partenaires locaux
Toulouse Malepère, GRANDE TERRASSE DE 40M2 AVEC EMPLACEMENT JACUZZI En 6ème étage sur 7 cet appartement 4 pièces comprends une entrée avec vestibule, une salle de bain, un wc indépendant, 2 chambres de 9,78 et 9,51m2, une chambre avec salle d'eau pour 15,31m2 et un séjour cuisine de 31,70m2 exposé sud ouest sur terrasse de 40,77m2 avec emplacement jacuzzi. 2 places de parking en sous-sol. Label RE2020 HQE avec prestations de qualité : DPE A, isolation renforcée, chauffage urbain, peinture lisse, carrelage 60*60, parquet dans les chambres ...... Ecoquartier centré sur le respect de l'environnement, le quartier offre une vie «comme à la campagne», entouré d'espaces verts, au calme et à l'abri du tumulte de l'hypercentre. Les amoureux de nature et de sport bénéficient d'un vaste réseau de pistes cyclables et de footing au sein du bois de l'Hers, le long du ruisseau de la Marcaissonne, de la rivière de l'Hers ou en direction du Parc Catala. Ici, tout est facilement accessible et tous les modes de déplacement sont possibles : bus (Liaison Multimodale Sud-Est reliant Malepère à la ligne B du métro, Linéo 9), métro avec les futures stations, voiture avec le périphérique tout proche. Les habitants profitent de la proximité du centre commercial Saint-Orens et de ses enseignes. Pour le quotidien, le coeur commerçant de la place de l'Ormeau est à seulement 1,5 km. Un projet de réaménagement du quartier prévoit la création d'une place commerciale et d'équipements publics (scolaires et culturels) qui viendront renforcer l'offre déjà existante. En résumé c'est un quartier jeune, dynamique offrant un confort de vie sans pareil, pour aujourd'hui et encore plus pour demain. BIEN NON SOUMIS AU DPE Pour tout renseignement : Féänor MAMEO [Coordonnées masquées]
Voir plus

Référence: FBV-C3361

Prêt immobilier

Vous souhaitez connaître votre capacité d’emprunt et trouver le meilleur crédit immobilier ?
Réaliser une simulation gratuite

Appartement à TOULOUSE
Appartement à TOULOUSE
Appartement à TOULOUSE
Appartement à TOULOUSE
Ce site est protégé par reCAPTCHA la Politique de confidentialité et les Conditions d’utilisation de Google s’appliquent.
Obtenir un prêt immobilier au meilleur taux ?

En poursuivant votre navigation sans modifier vos paramètres, vous acceptez l'utilisation de cookies susceptibles de réaliser des statistiques de visite. Cliquez ici pour plus d'informations