Bénéficiez des services de nos partenaires locaux soigneusement sélectionnés
pour vous accompagner dans votre parcours d'achat immobilier

Maison neuve

— Toulouse 31400 —
399 000 €
87 m² / 154 m²
4 pièces
parkingbalcon/terrassejardin

Nos partenaires locaux
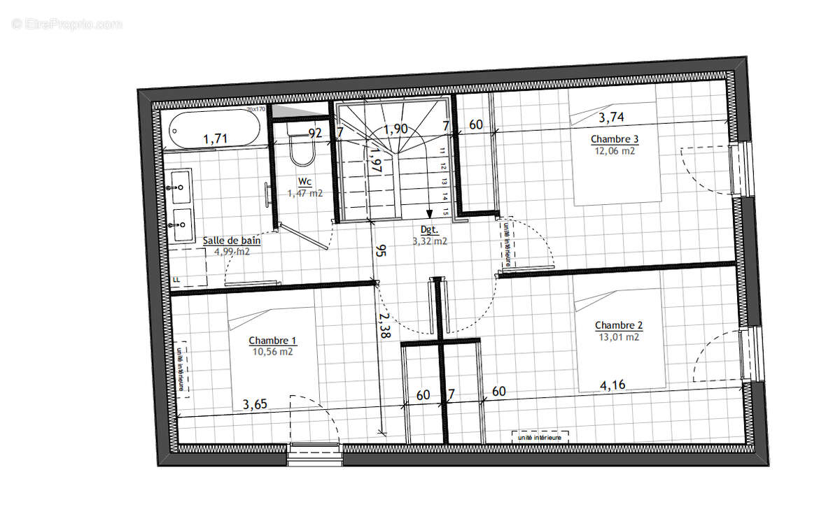
Toulouse Pouvourville, Maison individuelle en duplex composée : - pour la partie basse une place de midi, une salle d'eau wc, un séjour cuisine de 31,77m2 en triple exposition : sud-ouest-est sur terrasse de 9,53m2 et jardin de 154m2 - l'étage dessert le coin nuit composé de 3 chambres avec placard de 10,56, 13,01 et 12,06m2 Prestations soignées : pompe à chaleur air/air, ballon thermodynamique, carrelage 60*60, parquet dans les chambres, volets roulants motorisés ..... Situé sur les hauteurs au Sud de Toulouse, à seulement 6,6 km de la place du Capitole, le quartier de Pouvourville bénéficie d'une situation privilégiée. Il séduit pour sa proximité avec les pôles majeurs d'activité économique de la Métropole. De par son rayonnement international et son image fortement technologique, Toulouse séduit et attire toujours plus avec un patrimoine culturel remarquable et une qualité de vie exceptionnelle. Avec une aire urbaine de 1,3 M d'habitants, Toulouse, capitale de l'Occitanie, occupe une place stratégique, entre Atlantique et Méditerranée, toute proche de Barcelone. BIEN NON SOUMIS AU DPE Pour tout renseignement : Féänor MAMEO [Coordonnées masquées]
Voir plus

Référence: LBR-001
Honoraires à la charge du vendeur.

Prêt immobilier

Vous souhaitez connaître votre capacité d’emprunt et trouver le meilleur crédit immobilier ?
Réaliser une simulation gratuite

Maison à TOULOUSE
Maison à TOULOUSE
Maison à TOULOUSE
Maison à TOULOUSE
Maison à TOULOUSE
Ce site est protégé par reCAPTCHA la Politique de confidentialité et les Conditions d’utilisation de Google s’appliquent.
Obtenir un prêt immobilier au meilleur taux ?

En poursuivant votre navigation sans modifier vos paramètres, vous acceptez l'utilisation de cookies susceptibles de réaliser des statistiques de visite. Cliquez ici pour plus d'informations