Dernier étage sur terrasse

— Castelginest 31780 —
324 000 €
79 m²
4 pièces
parkingbalcon/terrasseascenseur

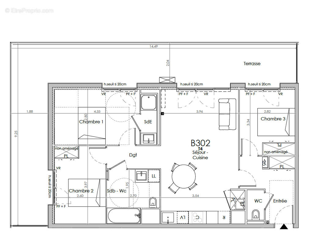
Castelginest Centre, Aux abords d'un espace boisé classé on vous présente ici cet appartement 4 pièces en dernier étage avec une agréable terrasse. Dans une copropriété avec ascenseur, au 3ème étage sur 3 cet appartement vous propose : - un séjour cuisine de 27,01m2 exposé ouest - une terrasse de 41,35m2 accessible depuis toutes les pièces du logement - 3 chambres de 12,12, 10,30 et 9,39m2 - Une salle de bain-wc, une salle d'eau et un second wc indépendant. De belles prestations vous sont proposées donc pompe à chaleur air/air pour le chauffage et la climatisation, ballon thermodynamique pour l'eau chaude, peinture blanche sur les murs, carrelage au sol parquet dans les chambres, volets roulants électriques .... Implanté dans un environnement calme et verdoyant, cet appartement bénéficie d'un emplacement privilégié, alliant la tranquillité d'un cadre résidentiel et la proximité de toutes les commodités. A deux pas des commerces, des établissements scolaires et des transports en commun, tout est pensé pour simplifier votre quotidien. BIEN NON SOUMIS AU DPE Pour tout renseignement : Féänor MAMEO [Coordonnées masquées]
Voir plus

Référence: QUE-B302
Honoraires à la charge du vendeur.

Prêt immobilier

Vous souhaitez connaître votre capacité d’emprunt et trouver le meilleur crédit immobilier ?
Réaliser une simulation gratuite

Appartement à CASTELGINEST
Appartement à CASTELGINEST
Appartement à CASTELGINEST
Appartement à CASTELGINEST
Ce site est protégé par reCAPTCHA la Politique de confidentialité et les Conditions d’utilisation de Google s’appliquent.
Obtenir un prêt immobilier au meilleur taux ?

En poursuivant votre navigation sans modifier vos paramètres, vous acceptez l'utilisation de cookies susceptibles de réaliser des statistiques de visite. Cliquez ici pour plus d'informations