Maison 154m² à cazenave-serres-et-allens

— Cazenave-Serres-Et-Allens 09400 —
289 000 €
154 m² / 5 311 m²
7 pièces
jardin

Iad France - Jérôme Algans vous propose : Propriété de charme en Pierre avec dépendances et rivière - Cazenave-Serres-et-Allens
Surface habitable : 153.67 m² Terrain : 5311 m² 4 Chambres

Un havre de paix exceptionnel ! Découvrez cette magnifique propriété en pierre, isolée au calme sur la commune prisée de Cazenave-Serres-et-Allens. Un lieu unique offrant un cadre de vie idyllique avec une plage privée sur la rivière, et un potentiel rare grâce à ses nombreuses dépendances.

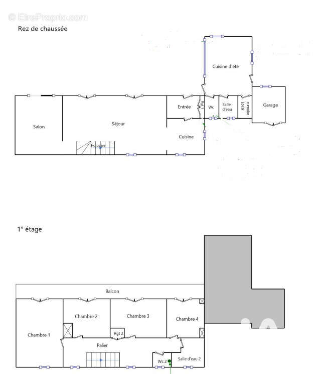
Description de la Maison Principale (153.67 m²)
Rez-de-Chaussée :
Espaces de Vie : Un hall d'entrée accueillant avec rangement, menant à une cuisine équipée ouverte sur un vaste séjour de plus de 35 m². Un salon de 19,7 m² baigné de lumière grâce à une large baie vitrée.

Commodités Estivales : Une cuisine d'été avec barbecue et pelle et bois, une salle d'eau, un sanitaire indépendant et un local cumulus.

Côté confort, la maison dispose d'un système de chauffage performant et polyvalent : un insert à bois pour le plaisir de la flamme et un poêle à granulés (pellets) de dernière génération. Ce dernier est équipé d'un distributeur de chaleur, garantissant une température homogène et un confort thermique optimal dans l'ensemble des pièces

Premier Étage :
Espace Nuit : Un palier spacieux avec rangement dessert quatre chambres lumineuses : 9.8 m², 14 m², 11.5 m², et la suite principale de 22.8 m² avec plafond cathédrale.

Atout des Chambres : Chacune bénéficie d'une porte-fenêtre donnant sur un balcon filant exposé plein sud, offrant une vue imprenable sur la montagne.

Salle d'eau : Équipée d'une douche et d'une vasque simple,
Un sanitaire séparé.

Les Atouts Majeurs et Dépendances
Cette propriété se distingue par ses installations pratiques et son potentiel :

Stationnement et Stockage :

Garage Camping-Car (31 m²)

Garage Voiture (21 m²)

Abris / Dépendance (13 m²) idéal pour le matériel de jardinage.

Dépendances Supplémentaires de 12.8 m² et 9.3 m².

Ancien Moulin à Eau : À rénover, avec son cours d'eau. Possibilité d'étudier une demande de droit d'eau pour une future production électrique (répertorier sur la carte de Cassini).

Extérieur et Environnement (5311 m²)
Le terrain de 5311 m² offre un environnement enchanteur avec de multiples possibilités d'aménagement paysager. Profitez de votre plage privée sur la rivière en été.

Localisation Idéale :
À proximité immédiate de nombreux points d'intérêt : départs de randonnées, stations de ski, sites touristiques et base nautique. Parfait pour les amoureux de la nature et des activités de plein air.

Coup de cOEur assuré pour les amateurs d'authenticité, d'espace et de sérénité. Venez découvrir le charme unique de cette propriété !

Honoraires d'agence à la charge du vendeur.
Information d'affichage énergétique sur ce bien : classe ENERGIE D indice 234 et classe CLIMAT B indice 6. Les informations sur les risques auxquels ce bien est exposé, y compris l'obligation légale de débroussaillement, sont disponibles sur le site Géorisques : http://www.georisques.gouv.fr.
La présente annonce immobilière a été rédigée sous la responsabilité éditoriale de M Jérôme Algans mandataire indépendant en immobilier (sans détention de fonds), agent commercial de la SAS I@D France immatriculé au RSAC de FOIX sous le numéro 993325570, titulaire de la carte de démarchage immobilier pour le compte de la société I@D France SAS.
Informations LOI ALUR :
Honoraires charge vendeur. (gedeon_6727_32362522)
Voir plus

Référence: 1913761
Honoraires à la charge du vendeur.
DPE
A
B
C
D
E
F
G
GES
A
B
C
D
E
F
G

Prêt immobilier

Vous souhaitez connaître votre capacité d’emprunt et trouver le meilleur crédit immobilier ?
Réaliser une simulation gratuite

Photo 1 - Maison à CAZENAVE-SERRES-ET-ALLENS
Photo 1
Photo 2 - Maison à CAZENAVE-SERRES-ET-ALLENS
Photo 2
Photo 3 - Maison à CAZENAVE-SERRES-ET-ALLENS
Photo 3
Photo 4 - Maison à CAZENAVE-SERRES-ET-ALLENS
Photo 4
Photo 5 - Maison à CAZENAVE-SERRES-ET-ALLENS
Photo 5
Photo 6 - Maison à CAZENAVE-SERRES-ET-ALLENS
Photo 6
Photo 7 - Maison à CAZENAVE-SERRES-ET-ALLENS
Photo 7
Photo 8 - Maison à CAZENAVE-SERRES-ET-ALLENS
Photo 8
Photo 9 - Maison à CAZENAVE-SERRES-ET-ALLENS
Photo 9
Ce site est protégé par reCAPTCHA la Politique de confidentialité et les Conditions d’utilisation de Google s’appliquent.
Obtenir un prêt immobilier au meilleur taux ?

En poursuivant votre navigation sans modifier vos paramètres, vous acceptez l'utilisation de cookies susceptibles de réaliser des statistiques de visite. Cliquez ici pour plus d'informations