Corps de ferme

— Vaureilles 12220 —
239 900 €
113 m² / 4 981 m²
3 pièces
parking

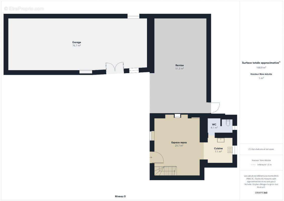
Au carrefour entre Rodez, Villefranche de Rouergue et Decazeville, ce magnifique corps de ferme en pleine campagne se compose d'une maison sur 2 niveaux de 113m², d'une grange de 110m² dont 40m² de mezzanine ainsi que d'un puit et d'un four à pain.
Ce bien d'exception sans voisin ni vis à vis, est situé sur un terrain d'environ 5000m², offrant un cadre paisible et verdoyant.

Idéal pour les amoureux de nature, de calme et de grands espaces, cette propriété saura vous séduire par son authenticité et son charme typiquement Aveyronnais, avec en prime une vue imprenable sur la chaine des Monts du Cantal.
La maison comprend une salle-à-manger, une cuisine équipée, un cellier et un wc en rez-de-jardin.Un salon avec poêle à bois et une salle de bain avec douche et baignoire au 1er,, et une grande chambre lumineuse se trouve au dernier niveau. La grange peut également être aménagée selon vos besoins et envies, un permis ayant été déposé au préalable, et pouvant facilement être réactivé.
Ne manquez pas cette opportunité unique d'acquérir un véritable havre de paix en Aveyron. Contactez-nous dès maintenant pour plus d'informations ou pour organiser une visite.

Vous pouvez visiter virtuellement cette propriété grâce au lien ci dessous :

https://tour.giraffe360.com/71e6fa9c976a4fb993af3b9d745f56cc/

Les informations sur les risques auxquels ce bien est exposé sont disponibles sur le site Géorisques : www.georisques.gouv.fr »
Voir plus

Référence: 91FEA46A21BE4AD4
Honoraires à la charge du vendeur.
DPE
A
B
C
D
E
F
G
GES
A
B
C
D
E
F
G

Prêt immobilier

Vous souhaitez connaître votre capacité d’emprunt et trouver le meilleur crédit immobilier ?
Réaliser une simulation gratuite

Maison à VAUREILLES
Maison à VAUREILLES
Maison à VAUREILLES
Maison à VAUREILLES
Maison à VAUREILLES
Maison à VAUREILLES
Maison à VAUREILLES
Maison à VAUREILLES
Maison à VAUREILLES
Maison à VAUREILLES
Maison à VAUREILLES
Maison à VAUREILLES
Maison à VAUREILLES
Maison à VAUREILLES
Maison à VAUREILLES
Maison à VAUREILLES
Maison à VAUREILLES
Maison à VAUREILLES
Maison à VAUREILLES
Maison à VAUREILLES
Ce site est protégé par reCAPTCHA la Politique de confidentialité et les Conditions d’utilisation de Google s’appliquent.
Obtenir un prêt immobilier au meilleur taux ?

En poursuivant votre navigation sans modifier vos paramètres, vous acceptez l'utilisation de cookies susceptibles de réaliser des statistiques de visite. Cliquez ici pour plus d'informations