Rare ! triplex 5 pièces - balcon + toit terrasse 80m² - romainville/ montreuil hôpital - 5min métro

— Romainville 93230 —
595 000 €
108 m²
5 pièces
balcon/terrasseascenseur

Hosman vous propose à la vente ce triplex de 5 pièces d'une surface Carrez de 108 m², situé allée Dame Ermenthrude à Romainville, à proximité du métro Montreuil–Hôpital. Implanté au sein d'un îlot piéton, ce bien rare se distingue par ses volumes généreux, sa belle luminosité et la qualité de ses espaces extérieurs.
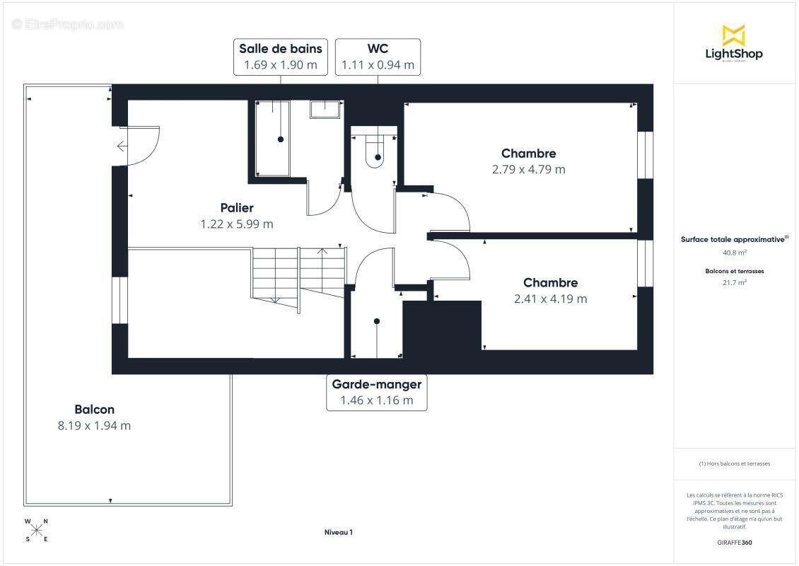
Organisé sur trois niveaux, l'appartement offre une distribution fluide et fonctionnelle, pensée pour un usage familial confortable .

Au premier niveau :

- Une entrée avec rangement
- Une vaste pièce de vie de 25m² bénéficiant de grandes baies vitrées
- Une cuisine de 6,3m² prête à être équipée
- Deux chambres de 11,6m² et 9m²
- Une salle de bain avec douche à l'italienne
- Des toilettes indépendantes

Au second niveau :
- Deux chambres de 13m² et 9,3m²
- Une salle de bain avec baignoire
- Des toilettes indépendantes
- Un balcon de 20m²

Au Dernier niveau :

- Un toit terrasse de 80m² avec une vue dégagée et sans vis à vis.

Le chauffage et la production d'eau chaude sont assurés par une chaudière au gaz.
Les charges de copropriété sont estimées à environ 300 € par mois.
Le logement est encore exempté de taxe foncière.
L'immeuble, dont la livraison s'est achevée récemment, bénéficie de parties communes en parfait état.
Une place de stationnement est proposée en sus du prix.

A proximité immédiate de Paris et au sein d'un secteur en pleine évolution, le quartier bénéficie d'un environnement résidentiel agréable, avec des commerces et services accessibles à pied.
La station de métro Montreuil–Hôpital (ligne 11) à environ 5min à pied, permet de rejoindre rapidement la capitale ou encore le centre commercial Rosny 2.

Hosman s'efforce de réinventer l'agence immobilière en offrant un service innovant et transparent aux acheteurs et aux vendeurs.

Nos frais d'agence sont de 15 900 euros fixes, à la charge du vendeur.
Voir plus

Référence: 4e82ed
Bien en copropriété. Charges de copropriété : 300 €.
Honoraires à la charge du vendeur.
DPE
A
B
C
D
E
F
G
GES
A
B
C
D
E
F
G

Prêt immobilier

Vous souhaitez connaître votre capacité d’emprunt et trouver le meilleur crédit immobilier ?
Réaliser une simulation gratuite

Appartement à ROMAINVILLE
Appartement à ROMAINVILLE
Appartement à ROMAINVILLE
Appartement à ROMAINVILLE
Appartement à ROMAINVILLE
Appartement à ROMAINVILLE
Appartement à ROMAINVILLE
Appartement à ROMAINVILLE
Appartement à ROMAINVILLE
Appartement à ROMAINVILLE
Appartement à ROMAINVILLE
Appartement à ROMAINVILLE
Appartement à ROMAINVILLE
Appartement à ROMAINVILLE
Appartement à ROMAINVILLE
Ce site est protégé par reCAPTCHA la Politique de confidentialité et les Conditions d’utilisation de Google s’appliquent.
Obtenir un prêt immobilier au meilleur taux ?

En poursuivant votre navigation sans modifier vos paramètres, vous acceptez l'utilisation de cookies susceptibles de réaliser des statistiques de visite. Cliquez ici pour plus d'informations