Bénéficiez des services de nos partenaires locaux soigneusement sélectionnés
pour vous accompagner dans votre parcours d'achat immobilier

A vendre- bel appartement t2 à pézenas sud

— Pezenas 34120 —
129 000 €
48 m²
2 pièces
parkingbalcon/terrasse

Nos partenaires locaux
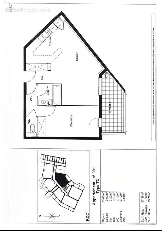
PÉZENAS, Situé au calme, à seulement quelques minutes à pied du centre-ville, cet appartement T2 de 48m2 en rez-de-chaussée vous séduira par son confort et ses prestations soignées.

Entièrement repeint à neuf, il offre une belle pièce de vie avec cuisine ouverte tout équipée de qualité, climatisée, idéale pour recevoir ou profiter d'un quotidien pratique et agréable.

La chambre spacieuse climatisée et une salle d'eau complètent cet espace fonctionnel. Vous apprécierez particulièrement sa terrasse de 8m2, parfaite pour vos moments de détente en extérieur.

Une place de parking sécurisée vient parfaire ce bien.

Vous recherchez ce type d'appartement, ne tardez pas à me contacter -- Joël Pirault, votre conseiller Global Immobilier.
Les informations sur les risques auxquels ce bien est exposé sont disponibles sur le site www.georisques.gouv.fr
Cette annonce vous est proposée par PIRAULT JOEL - EI - NoRSAC: 348 466 269, Enregistré au Greffe du tribunal de commerce de Montpellier - Annonce rédigée et publiée par un Agent Mandataire -
Voir plus

Référence: 7668
Bien en copropriété. Charges de copropriété : 860 €.
Honoraires à la charge du vendeur.
Barème des honoraires
DPE
A
B
C
D
E
F
G
GES
A
B
C
D
E
F
G

Prêt immobilier

Vous souhaitez connaître votre capacité d’emprunt et trouver le meilleur crédit immobilier ?
Réaliser une simulation gratuite

Appartement à PEZENAS
Appartement à PEZENAS
Appartement à PEZENAS
Appartement à PEZENAS
Appartement à PEZENAS
Appartement à PEZENAS
Appartement à PEZENAS
Appartement à PEZENAS
Ce site est protégé par reCAPTCHA la Politique de confidentialité et les Conditions d’utilisation de Google s’appliquent.
Obtenir un prêt immobilier au meilleur taux ?

En poursuivant votre navigation sans modifier vos paramètres, vous acceptez l'utilisation de cookies susceptibles de réaliser des statistiques de visite. Cliquez ici pour plus d'informations