Bénéficiez des services de nos partenaires locaux soigneusement sélectionnés
pour vous accompagner dans votre parcours d'achat immobilier

Appartement 3 pièces en duplex avec balcon.

— Saint-Denis 93200 —
381 000 €
69 m²
3 pièces
balcon/terrasse

Nos partenaires locaux
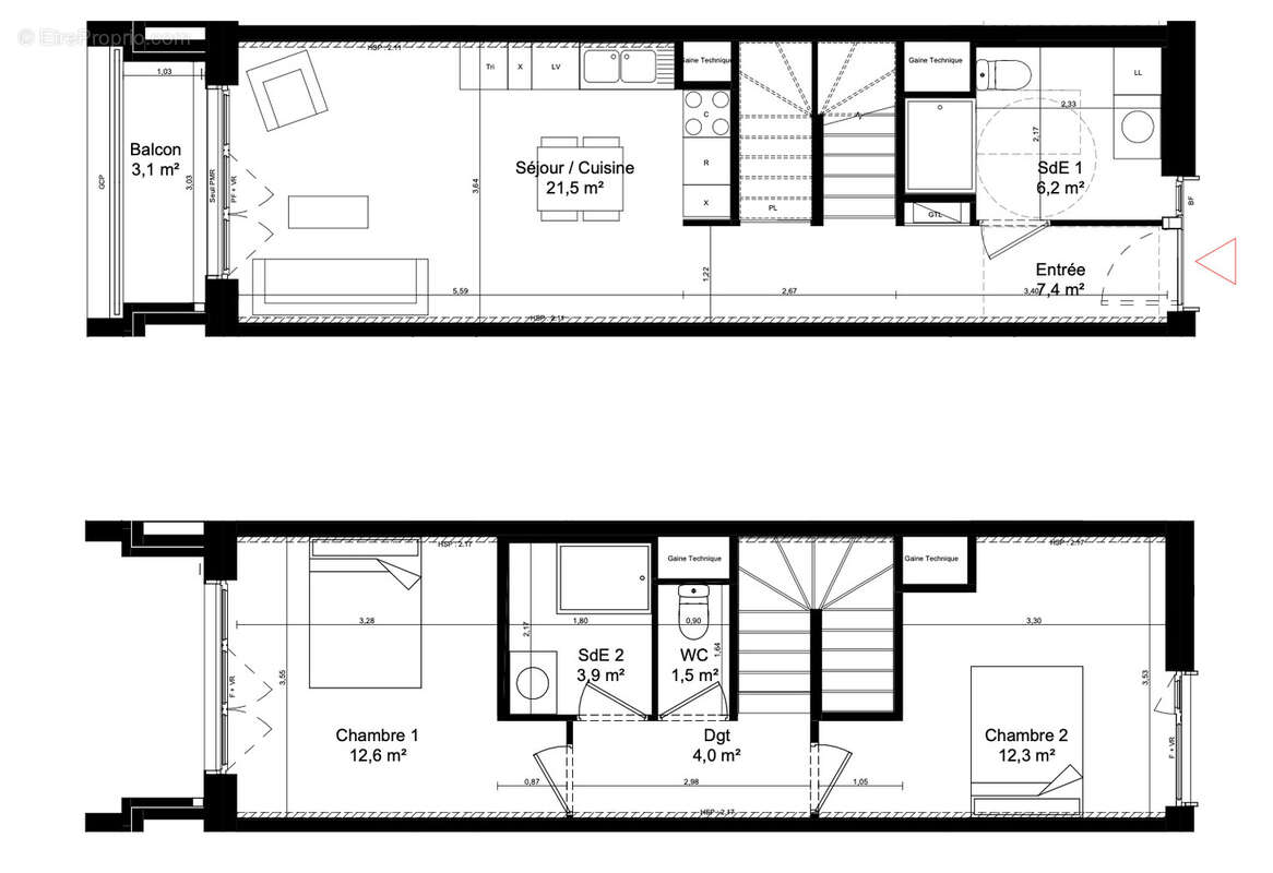
Cet appartement de trois pièces en duplex est situé aux quatrième et cinquième étages de la résidence.La surface habitable est de 69,40 m2, complétée par un balcon de 3,10 m2.
Le premier niveau comprend une entrée de 7,40 m2 permettant une distribution claire des espaces.Le séjour avec cuisine intégrée développe une surface de 21,50 m2 et constitue l’espace de vie principal.Une salle d’eau de 6,20 m2 est accessible depuis ce niveau.
À l’étage, l’espace nuit se compose de deux chambres.La première chambre développe une surface de 12,60 m2.La seconde chambre présente une surface de 12,30 m2.
Un dégagement de 4,00 m2 dessert une seconde salle d’eau de 3,90 m2 ainsi que des toilettes indépendantes de 1,50 m2.
Le balcon de 3,10 m2 prolonge le séjour et offre un espace extérieur accessible au quotidien.L’organisation en duplex permet une séparation nette entre les espaces de vie et les espaces nuit.
L’appartement s’inscrit dans une résidence intégrée à un ensemble urbain structuré, associant logements, commerces et espaces de services.La résidence est organisée autour de cheminements piétons, d’espaces paysagers et de cœurs d’îlot accessibles aux résidents.
Contactez-nous pour plus d'informations !
Prix affiché en TVA réduite.
Images d'illustration, non contractuelles
Voir plus

Bien en copropriété. Nombre de lots : 95.
Barème des honoraires
DPE
A
B
C
D
E
F
G
GES
A
B
C
D
E
F
G

Prêt immobilier

Vous souhaitez connaître votre capacité d’emprunt et trouver le meilleur crédit immobilier ?
Réaliser une simulation gratuite

Appartement à SAINT-DENIS
Appartement à SAINT-DENIS
Appartement à SAINT-DENIS
Appartement à SAINT-DENIS
Ce site est protégé par reCAPTCHA la Politique de confidentialité et les Conditions d’utilisation de Google s’appliquent.
Obtenir un prêt immobilier au meilleur taux ?

En poursuivant votre navigation sans modifier vos paramètres, vous acceptez l'utilisation de cookies susceptibles de réaliser des statistiques de visite. Cliquez ici pour plus d'informations