Bénéficiez des services de nos partenaires locaux soigneusement sélectionnés
pour vous accompagner dans votre parcours d'achat immobilier

Maison familiale atypique – fort potentiel – secteur résidentiel prisé du 12ᵉ arrondissement

— Marseille-12e 13012 —
660 000 €
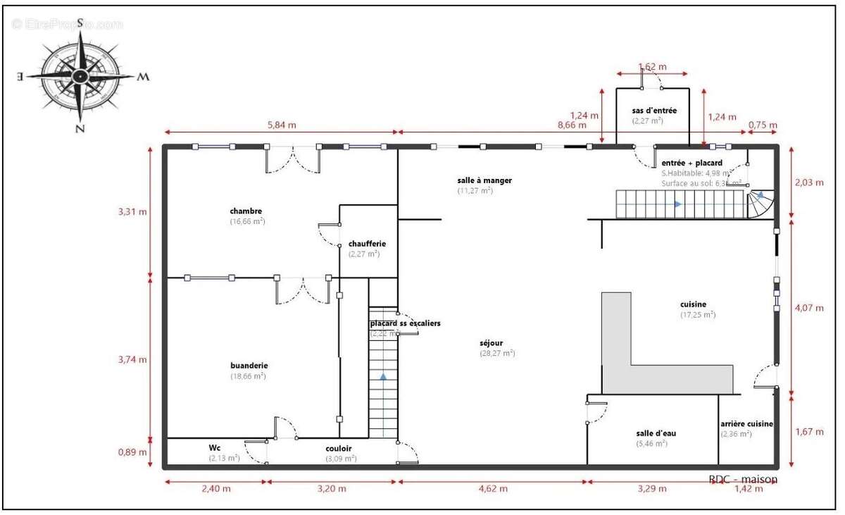
197 m² / 600 m²
6 pièces
parkingjardinpiscine

Nos partenaires locaux
MAISON FAMILIALE ATYPIQUE – FORT POTENTIEL – SECTEUR RÉSIDENTIEL PRISÉ DU 12ᵉ ARRONDISSEMENT

Au cœur d’un quartier résidentiel très recherché du 12ᵉ arrondissement, composé exclusivement de villas, découvrez cette propriété atypique au caractère rare, idéale aussi bien en résidence principale, résidence secondaire ou en investissement locatif à fort potentiel.

Issu à l’origine de plusieurs ensembles immobiliers aujourd’hui réunis en une seule habitation, ce bien offre une flexibilité exceptionnelle : les investisseurs pourront, s’ils le souhaitent, rediviser les lots afin d’optimiser la rentabilité selon leur projet.

Les atouts majeurs du bien

Pièce de vie spectaculaire de 57 m², lumineuse et conviviale

Grandes chambres principales

1 salle de bain et 2 salles de douche, offrant un confort optimal pour une famille ou un projet locatif

Climatisation avec accès arrière dédié au moteur

Volets roulants

Calme absolu dans un environnement résidentiel privilégié

Exposition plein sud

DPE C, performance énergétique appréciable

Extérieurs pensés pour la détente

Grande piscine avec local technique dédié

Pool house

WC extérieur

Grande terrasse d’été, idéale pour recevoir

Terrain de boules

Abri de jardin pour le rangement extérieur

Portail manuel

Un secteur ultra recherché

Quartier Montolivet – 13012, réputé pour son cadre de vie paisible, verdoyant et familial

Environnement exclusivement pavillonnaire

Proximité immédiate des écoles, commerces, axes routiers et transports, tout en conservant une réelle tranquillité

Travaux à prévoir

Des travaux sont à envisager, avec un budget évolutif selon le projet (résidentiel haut de gamme, division, investissement locatif ou résidence secondaire).

Une véritable opportunité de création de valeur.

Informations complémentaires

Taxe foncière : 3 109 € / an (à revoir à la baisse)

Charges énergétiques estimées : entre 1 850 € et 2 550 € / an

Un bien rare sur le secteur

Par sa configuration unique, son potentiel d’évolution, ses prestations extérieures et son emplacement stratégique, cette maison représente une opportunité rare dans le 12ᵉ arrondissement.

À découvrir sans tarder – projets multiples possibles. La présente annonce immobilière a été rédigée sous la responsabilité éditoriale de l'agent commercial mandataire en immobilier. Kelly GUEDJ
Voir plus

Référence: 12039
Barème des honoraires
DPE
A
B
C
D
E
F
G
GES
A
B
C
D
E
F
G

Prêt immobilier

Vous souhaitez connaître votre capacité d’emprunt et trouver le meilleur crédit immobilier ?
Réaliser une simulation gratuite

Appartement à MARSEILLE-12E
Appartement à MARSEILLE-12E
Appartement à MARSEILLE-12E
Appartement à MARSEILLE-12E
Appartement à MARSEILLE-12E
Appartement à MARSEILLE-12E
Appartement à MARSEILLE-12E
Appartement à MARSEILLE-12E
Appartement à MARSEILLE-12E
Appartement à MARSEILLE-12E
Appartement à MARSEILLE-12E
Appartement à MARSEILLE-12E
Appartement à MARSEILLE-12E
Appartement à MARSEILLE-12E
Appartement à MARSEILLE-12E
Appartement à MARSEILLE-12E
Appartement à MARSEILLE-12E
Appartement à MARSEILLE-12E
Appartement à MARSEILLE-12E
Appartement à MARSEILLE-12E
Appartement à MARSEILLE-12E
Appartement à MARSEILLE-12E
Appartement à MARSEILLE-12E
Appartement à MARSEILLE-12E
Appartement à MARSEILLE-12E
Appartement à MARSEILLE-12E
Appartement à MARSEILLE-12E
Appartement à MARSEILLE-12E
Appartement à MARSEILLE-12E
Ce site est protégé par reCAPTCHA la Politique de confidentialité et les Conditions d’utilisation de Google s’appliquent.
Obtenir un prêt immobilier au meilleur taux ?

En poursuivant votre navigation sans modifier vos paramètres, vous acceptez l'utilisation de cookies susceptibles de réaliser des statistiques de visite. Cliquez ici pour plus d'informations