Bénéficiez des services de nos partenaires locaux soigneusement sélectionnés
pour vous accompagner dans votre parcours d'achat immobilier

Exclusivite : a vendre brest saint-pierre quatre moulins appartement 4 pièces 2 chambres balcon

— Brest 29200 —
138 775 €
78 m²
4 pièces
balcon/terrasse

Nos partenaires locaux
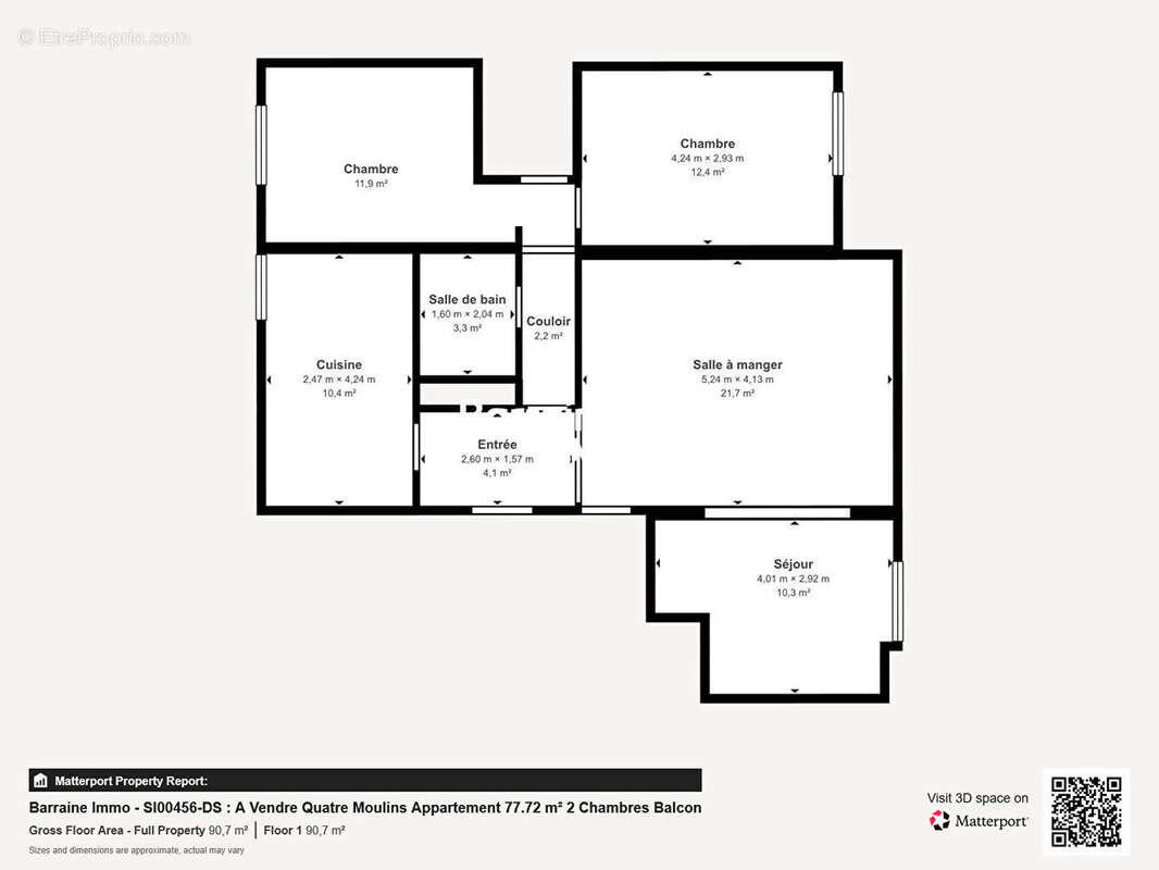
A VENDRE BREST SAINT-PIERRE QUATRE MOULINS Découvrez cet appartement spacieux de 4 pièces, d'une surface de 77.72 m², situé au rez-de-chaussée d'un immeuble très familial de 6 étages à Brest. Ce bien comprend 2 chambres, une cuisine indépendante, un séjour lumineux de 31.54 m² exposé plein sud avec balcon de 9m², ainsi qu'une salle d'eau et un WC séparé. Le chauffage est assuré par des radiateurs électriques et l'eau chaude est produite par un ballon électrique. L'appartement bénéficie également d'un balcon, parfait pour profiter des journées ensoleillées. L'appartement nécessitera quelques travaux permettant de dévoiler l'ensemble de son potentiel. Il pourrait tout à fait s'adapter à des personnes pouvant avoir des difficulté à monter des marches étant de plain pied. La copropriété est familiale et principalement occupée par des propriétaires, garantissant un cadre de vie agréable. Idéalement situé, cet appartement se trouve à seulement 3 minutes à pied de l'arrêt de tramway et à 1 minute des arrêts de bus. Les commerces sont à 100 mètres, et plusieurs établissements scolaires tels que l'École maternelle Quatre Moulins et l'École primaire publique Quatre Moulins sont à proximité. Les fenêtres en PVC double vitrage assurent une bonne isolation. Une cave est également incluse dans la vente. Ne manquez pas cette opportunité de vivre dans un secteur prisé de Brest. Contactez l'Agence Barraine IMMO Brest - Siam pour plus d'informations et pour organiser une visite. (6.75 % honoraires TTC à la charge de l'acquéreur.) Copropriété de 11 lots - dont 11 lots habitation. (Pas de procédure en cours). Charges annuelles : 840 euros.
Voir plus

Référence: SI00456-DS
Bien en copropriété. Nombre de lots : 11. Charges de copropriété : 840 €.
Honoraires d'agence de 6.75% à la charge de l'acquéreur
Barème des honoraires
DPE
A
B
C
D
E
F
G
GES
A
B
C
D
E
F
G

Prêt immobilier

Vous souhaitez connaître votre capacité d’emprunt et trouver le meilleur crédit immobilier ?
Réaliser une simulation gratuite

Appartement à BREST
Appartement à BREST
Appartement à BREST
Appartement à BREST
Appartement à BREST
Appartement à BREST
Appartement à BREST
Appartement à BREST
Appartement à BREST
Appartement à BREST
Appartement à BREST
Appartement à BREST
Appartement à BREST
Appartement à BREST
Appartement à BREST
Appartement à BREST
Appartement à BREST
Appartement à BREST
Appartement à BREST
Ce site est protégé par reCAPTCHA la Politique de confidentialité et les Conditions d’utilisation de Google s’appliquent.
Obtenir un prêt immobilier au meilleur taux ?

En poursuivant votre navigation sans modifier vos paramètres, vous acceptez l'utilisation de cookies susceptibles de réaliser des statistiques de visite. Cliquez ici pour plus d'informations