Bénéficiez des services de nos partenaires locaux soigneusement sélectionnés
pour vous accompagner dans votre parcours d'achat immobilier

Issy les moulineaux - île saint-germain

— Issy-Les-Moulineaux 92130 —
750 000 €
67 m²
3 pièces

Nos partenaires locaux
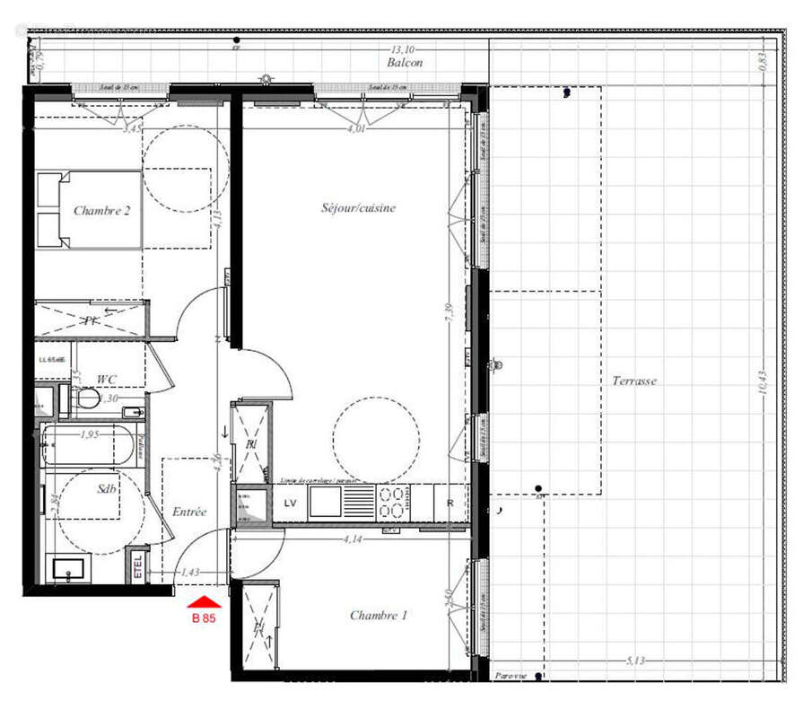
Idéalement situé, à proximité immédiate de nombreux transports (Bus, Tramways, RER C) , et au pied de la future ligne 15 du métro. L'agence FREDeLION Saint-Charles vous propose ce bel appartement familial de 67 m² au sein d'une résidence récente de standing à deux pas des commerces, écoles et crèches Il bénéficie d'une exceptionnelle terrasse de 65 m² exposé plein sud, offrant une belle vue dégagée sur la Tour Eiffel. L'appartement se compose d'une entrée avec placard, d'un vaste double séjour lumineux bénéficiant d'une double exposition et ouvrant sur la terrasse, d'une cuisine ouverte Schmidt entièrement équipée, d'une chambre parentale très calme avec rangements intégrés et accès à un balcon, d'une seconde chambre donnant sur la terrasse, d'une grande salle de bains, ainsi que de WC séparés avec buanderie intégrée. Les charges mensuelles de 215 euros comprennent l'eau froide, l'eau chaude, le chauffage, l'ascenseur et l'entretien des parties communes. L'appartement est classé DPE C. Une cave complète ce bien. Un emplacement de parking est disponible en supplément au prix de 25 000 euros. (3.45 % honoraires TTC à la charge de l'acquéreur.)
Voir plus

Honoraires d'agence de 3.45% à la charge de l'acquéreur
DPE
A
B
C
D
E
F
G
GES
A
B
C
D
E
F
G

Prêt immobilier

Vous souhaitez connaître votre capacité d’emprunt et trouver le meilleur crédit immobilier ?
Réaliser une simulation gratuite

Appartement à ISSY-LES-MOULINEAUX
Appartement à ISSY-LES-MOULINEAUX
Appartement à ISSY-LES-MOULINEAUX
Appartement à ISSY-LES-MOULINEAUX
Appartement à ISSY-LES-MOULINEAUX
Appartement à ISSY-LES-MOULINEAUX
Appartement à ISSY-LES-MOULINEAUX
Appartement à ISSY-LES-MOULINEAUX
Appartement à ISSY-LES-MOULINEAUX
Ce site est protégé par reCAPTCHA la Politique de confidentialité et les Conditions d’utilisation de Google s’appliquent.
Obtenir un prêt immobilier au meilleur taux ?

En poursuivant votre navigation sans modifier vos paramètres, vous acceptez l'utilisation de cookies susceptibles de réaliser des statistiques de visite. Cliquez ici pour plus d'informations