Bénéficiez des services de nos partenaires locaux soigneusement sélectionnés
pour vous accompagner dans votre parcours d'achat immobilier

Immeuble castelnaudary 8 pièce(s) 376.06 m² + grenier

— Castelnaudary 11400 —
367 000 €
376 m² / 505 m²
9 pièces
parkingjardin

Nos partenaires locaux
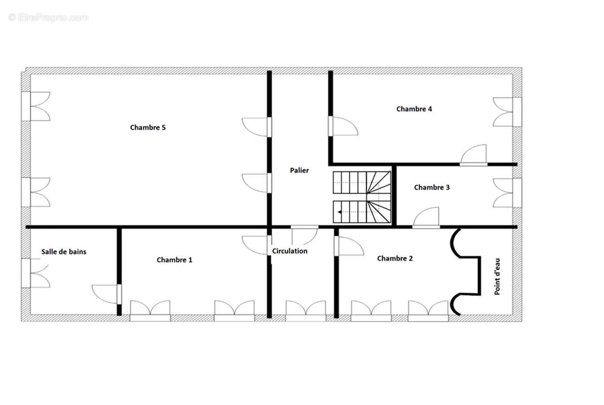
Castelnaudary hypercentre, proche commerces, Canal du Midi et gare, dans quartier recherché, l'Agence IMOGROUP vous propose ce bel immeuble de caractère avec grande cour et 2 garages de 52 m² et 40 m². Au rez-de-chaussée, vaste entrée desservant 5 grandes pièces, soit une surface de 191 m² habitables à exploiter. Au 1er étage : 4 grandes chambres, une pièce de 60 m² divisible, 2 sanitaires, soit 199 m² habitables pouvant être reliés au 2nd étage pour créer des appartements en duplex. Au 2nd étage : grenier aménageable. Cet immeuble idéalement situé laisse d'énormes possibilités pour un projet d'investissement locatif ou d'habitat partagé. Il est totalement modulable. Il offre également la possibilité d'installer un ascenseur pour desservir les deux étages. (4.86 % honoraires TTC à la charge de l'acquéreur.)
Voir plus

Référence: 9174
Honoraires d'agence de 4.86% à la charge de l'acquéreur
Barème des honoraires
DPE
A
B
C
D
E
F
G
GES
A
B
C
D
E
F
G

Prêt immobilier

Vous souhaitez connaître votre capacité d’emprunt et trouver le meilleur crédit immobilier ?
Réaliser une simulation gratuite

Appartement à CASTELNAUDARY
Appartement à CASTELNAUDARY
Appartement à CASTELNAUDARY
Appartement à CASTELNAUDARY
Appartement à CASTELNAUDARY
Appartement à CASTELNAUDARY
Appartement à CASTELNAUDARY
Appartement à CASTELNAUDARY
Appartement à CASTELNAUDARY
Appartement à CASTELNAUDARY
Appartement à CASTELNAUDARY
Appartement à CASTELNAUDARY
Appartement à CASTELNAUDARY
Appartement à CASTELNAUDARY
Appartement à CASTELNAUDARY
Appartement à CASTELNAUDARY
Appartement à CASTELNAUDARY
Appartement à CASTELNAUDARY
Ce site est protégé par reCAPTCHA la Politique de confidentialité et les Conditions d’utilisation de Google s’appliquent.
Obtenir un prêt immobilier au meilleur taux ?

En poursuivant votre navigation sans modifier vos paramètres, vous acceptez l'utilisation de cookies susceptibles de réaliser des statistiques de visite. Cliquez ici pour plus d'informations