Bénéficiez des services de nos partenaires locaux soigneusement sélectionnés
pour vous accompagner dans votre parcours d'achat immobilier

Appartement 52m² à neuilly-sur-seine

— Neuilly-Sur-Seine 92200 —
590 000 €
52 m²
2 pièces
ascenseur

Nos partenaires locaux
Iad France - Marie-Albane D'utruy vous propose : * Sablons - Avenue Charles de Gaulle - Appartement 52 m² - 5ème étage *

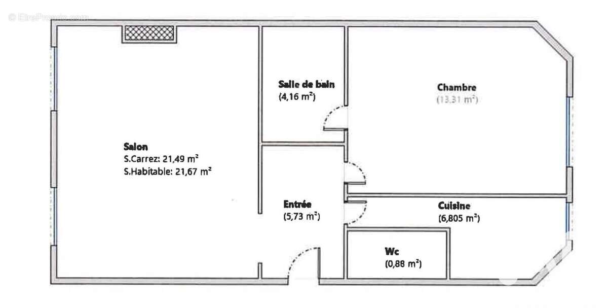
Dans charmante copropriété de la fin du 19ème siècle, bien entretenue (rénovation des parties communes récente), au 5ème étage avec ascenseur, agréable 2 pièces de 52 m².

L'appartement se compose d'une entrée, d'une agréable pièce de vie lumineuse de 21 m², de WC indépendants, d'une cuisine, d'une belle chambre au calme sur jardin avec salle de bains et WC. Une grande cave complète ce bien.

Vous serez séduit par le charme de l'ancien (parquet et cheminées), la belle pièce de vie lumineuse et la localisation (nombreux commerces et métro Sablons à proximité).

Les + :
- La luminosité
- L'étage élevé
- La localisation
- Le charme de l'ancien
- La disposition sans perte de place
- La rénovation récente des parties communes

La presente annonce immobiliere vise 2 lots situés dans une copropriété de 28 lots au total et ne faisant l'objet d'aucune procédure en cours citée à l'article L. 721-1 du code de la construction et de l'habitation. Montant moyen mensuel de charges déclaré par le vendeur : 138¤ par mois (soit 1656 ¤ annuel). Honoraires d'agence à la charge du vendeur.
Bien non soumis au DPE. Les informations sur les risques auxquels ce bien est exposé, y compris l'obligation légale de débroussaillement, sont disponibles sur le site Géorisques : http://www.georisques.gouv.fr.
La présente annonce immobilière a été rédigée sous la responsabilité éditoriale de Mme Marie-Albane D'utruy mandataire indépendant en immobilier (sans détention de fonds), agent commercial de la SAS I@D France immatriculé au RSAC de PARIS sous le numéro 884380353, titulaire de la carte de démarchage immobilier pour le compte de la société I@D France SAS.
Informations LOI ALUR :
Soumis au régime de copropriété.
Nombre de lots : 28.
Quote part annuelle(moyenne) : 1656 euros.
Honoraires charge vendeur. (gedeon_6727_32367255)
Voir plus

Référence: 1914146
Bien en copropriété. Nombre de lots : 28. Charges de copropriété : 1656 €.
Honoraires à la charge du vendeur.

Prêt immobilier

Vous souhaitez connaître votre capacité d’emprunt et trouver le meilleur crédit immobilier ?
Réaliser une simulation gratuite

Photo 1 - Appartement à NEUILLY-SUR-SEINE
Photo 1
Photo 2 - Appartement à NEUILLY-SUR-SEINE
Photo 2
Photo 3 - Appartement à NEUILLY-SUR-SEINE
Photo 3
Photo 4 - Appartement à NEUILLY-SUR-SEINE
Photo 4
Photo 5 - Appartement à NEUILLY-SUR-SEINE
Photo 5
Photo 6 - Appartement à NEUILLY-SUR-SEINE
Photo 6
Photo 7 - Appartement à NEUILLY-SUR-SEINE
Photo 7
Ce site est protégé par reCAPTCHA la Politique de confidentialité et les Conditions d’utilisation de Google s’appliquent.
Obtenir un prêt immobilier au meilleur taux ?

En poursuivant votre navigation sans modifier vos paramètres, vous acceptez l'utilisation de cookies susceptibles de réaliser des statistiques de visite. Cliquez ici pour plus d'informations