Bénéficiez des services de nos partenaires locaux soigneusement sélectionnés
pour vous accompagner dans votre parcours d'achat immobilier

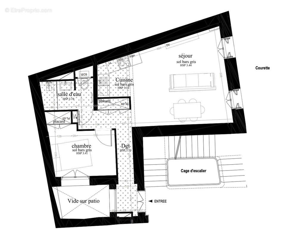
Appartement 46m² à montpellier

— Montpellier 34000 —
395 000 €
46 m²
2 pièces

Nos partenaires locaux
Iad France - Melanie Jordana vous propose : * Luxueux appartement T2 rénové au coeur de l'Ecusson - Hôtel Verrière Montpellieret *

Situé au cOEur du quartier de l'Ecusson, cet appartement T2 a été récemment rénové avec soin pour offrir un espace de vie moderne et confortable. Idéal pour un premier achat, un investissement locatif ou une résidence secondaire, cet appartement a tout pour plaire.

L'appartement se compose d'une chambre lumineuse, d'une salle d'eau moderne, d'un séjour accueillant, d'une cuisine équipée et d'un WC séparé. Chaque espace a été pensé pour offrir fonctionnalité et confort au quotidien. La surface de 46.3 m² offre un bel équilibre entre espace de vie et intimité.

Situé au premier étage d'un immeuble de 3 niveaux datant de 1800, l'appartement bénéficie d'une exposition au nord, offrant une luminosité agréable tout au long de la journée. La résidence, avec son caractère historique et son environnement calme, est un véritable havre de paix en plein cOEur de la ville.

De plus, la résidence fermée dispose d'une petite cour avec un patio qui assure sécurité et tranquillité à ses habitants.

Les commerces, les transports en commun et les commodités sont facilement accessibles, ajoutant une touche de praticité au quotidien.

Cet appartement est une véritable pépite sur le marché immobilier de Montpellier. Ne manquez pas l'occasion de visiter ce bien d'exception et de vous laisser séduire par son charme et son confort. Contactez-moi dès aujourd'hui pour organiser une visite!

La presente annonce immobiliere vise 1 lot situé dans une copropriété de 8 lots au total et ne faisant l'objet d'aucune procédure en cours citée à l'article L. 721-1 du code de la construction et de l'habitation. Montant moyen mensuel de charges déclaré par le vendeur : 68¤ par mois (soit 816 ¤ annuel). Honoraires d'agence à la charge du vendeur.
Bien non soumis au DPE. Les informations sur les risques auxquels ce bien est exposé, y compris l'obligation légale de débroussaillement, sont disponibles sur le site Géorisques : http://www.georisques.gouv.fr.
La présente annonce immobilière a été rédigée sous la responsabilité éditoriale de Mme Melanie Jordana mandataire indépendant en immobilier (sans détention de fonds), agent commercial de la SAS I@D France immatriculé au RSAC de MONTPELLIER sous le numéro 934245580, titulaire de la carte de démarchage immobilier pour le compte de la société I@D France SAS.
Informations LOI ALUR :
Soumis au régime de copropriété.
Nombre de lots : 8.
Quote part annuelle(moyenne) : 816 euros.
Honoraires charge vendeur. (gedeon_6727_32367318)
Voir plus

Référence: 1914550
Bien en copropriété. Nombre de lots : 8. Charges de copropriété : 816 €.
Honoraires à la charge du vendeur.

Prêt immobilier

Vous souhaitez connaître votre capacité d’emprunt et trouver le meilleur crédit immobilier ?
Réaliser une simulation gratuite

Photo 1 - Appartement à MONTPELLIER
Photo 1
Photo 2 - Appartement à MONTPELLIER
Photo 2
Photo 3 - Appartement à MONTPELLIER
Photo 3
Photo 4 - Appartement à MONTPELLIER
Photo 4
Photo 5 - Appartement à MONTPELLIER
Photo 5
Photo 6 - Appartement à MONTPELLIER
Photo 6
Ce site est protégé par reCAPTCHA la Politique de confidentialité et les Conditions d’utilisation de Google s’appliquent.
Obtenir un prêt immobilier au meilleur taux ?

En poursuivant votre navigation sans modifier vos paramètres, vous acceptez l'utilisation de cookies susceptibles de réaliser des statistiques de visite. Cliquez ici pour plus d'informations