Bénéficiez des services de nos partenaires locaux soigneusement sélectionnés
pour vous accompagner dans votre parcours d'achat immobilier

Plain pied au calme avec beau terrain

— Lecelles 59226 —
238 600 €
180 m² / 2 216 m²
6 pièces
parkingjardin

Nos partenaires locaux
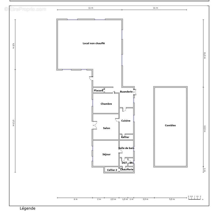
L'agence Immo Duflot de St amand les eaux vous propose en exclusivité cette maison individuelle plain pied, à fort potentiel (possibilité 180 m2 habitables), nichée sur une parcelle de 2 200 m2, au calme et sans aucun vis-à-vis, du coté de Lecelles.
Elle se compose :
- D’une grande pièce de vie neuve de 100 m2, permettant d'aménager un hall d’entrée, grand espace ouvert salon-salle à manger, cuisine, wc et suite parentale (ou 2 chambres).
- D’une partie à réaménager dans la partie longère comprenant cuisine, salon, salle à manger et une chambre, salle d'eau avec baignoire et douche, et WC : possibilité d'aménager en 3 chambres et une grande salle d'eau familiale ou en 2 gites pour les curistes ou autre location.
Bénéficiez également :
- d'une terrasse exposée plein sud,
- d'un jardin arboré sans vis-à-vis avec vue dégagée sur la campagne,
- d'un stationnement privatif devant la maison et sécurisé avec portail.
Autres atouts : menuiseries neuves avec facture et garantie (dont 4 baies vitrées), toiture extension neuve, certains matériaux fournis (tableau électrique Legrand, VMC…), tout à l'égout (facture), fibre optique, faible taxe foncière…
DPE en E en raison de la grande pièce isolée mais non chauffée. Audit disponible lors de la visite.
Photos complémentaires sur notre site immoduflot.fr
Voir plus

Référence: 43
Honoraires à la charge du vendeur.
Barème des honoraires
DPE
A
B
C
D
E
F
G
GES
A
B
C
D
E
F
G

Prêt immobilier

Vous souhaitez connaître votre capacité d’emprunt et trouver le meilleur crédit immobilier ?
Réaliser une simulation gratuite

Maison à LECELLES
Maison à LECELLES
Maison à LECELLES
Maison à LECELLES
Maison à LECELLES
Maison à LECELLES
Maison à LECELLES
Maison à LECELLES
Maison à LECELLES
Maison à LECELLES
Maison à LECELLES
Maison à LECELLES
Maison à LECELLES
Maison à LECELLES
Ce site est protégé par reCAPTCHA la Politique de confidentialité et les Conditions d’utilisation de Google s’appliquent.
Obtenir un prêt immobilier au meilleur taux ?

En poursuivant votre navigation sans modifier vos paramètres, vous acceptez l'utilisation de cookies susceptibles de réaliser des statistiques de visite. Cliquez ici pour plus d'informations