Bénéficiez des services de nos partenaires locaux soigneusement sélectionnés
pour vous accompagner dans votre parcours d'achat immobilier

Superbe opportunité spacieux t4 dplex rdj

— Toulouse 31200 —
329 900 €
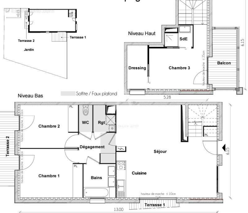
91 m² / 192 m²
4 pièces
parkingbalcon/terrasse

Nos partenaires locaux
31 200 Toulouse Grand Selve, vous serez le premier occupant privilégié de ce spacieux T4 Duplex en rez de jardin de 91.38m2 avec 192m2 d'exterieur. Grand séjour avec cuisine ouverte équipée donnant plein sud. 2 chambres sur terrasse et une suite parentale avec sa salle d'eau et sa terrasse tropezienne. Salle de Bains, WC. 1 double parking en sous-sol. Appartement équipé des dernières innovations domotique, et réglementations thermiques RT 2012. Secteur calme dans une ville dynamique et très agréable à vivre, avec toutes les commodités à proximité Petite résidence de 15 lots entourés de beaux jardins arborés. Toutes les commodités à proximité! A saisir! Bien soumis au statut juridique de la Copropriété. Nb de lots : 44. « Les informations sur les risques auxquels ce bien est exposé sont disponibles sur le site Géorisques : https://www.georisques.gouv.fr/ » Contactez Valérie RENAULT au [Coordonnées masquées], AXO - L'immobilier Actif, Agent Commercial RSAC 922.070.65 Toulouse. Plus d'informations sur www.axo.immo (réf. 85002102813) et [Coordonnées masquées]. Honoraires charge vendeur Bien soumis au statut juridique de la Copropriété. Nb de lots : 15.
Voir plus

Référence: 31530
Bien en copropriété. Nombre de lots : 15.
Honoraires à la charge du vendeur.
Barème des honoraires

Prêt immobilier

Vous souhaitez connaître votre capacité d’emprunt et trouver le meilleur crédit immobilier ?
Réaliser une simulation gratuite

Appartement à TOULOUSE
Appartement à TOULOUSE
Appartement à TOULOUSE
Appartement à TOULOUSE
Appartement à TOULOUSE
Appartement à TOULOUSE
Appartement à TOULOUSE
Ce site est protégé par reCAPTCHA la Politique de confidentialité et les Conditions d’utilisation de Google s’appliquent.
Obtenir un prêt immobilier au meilleur taux ?

En poursuivant votre navigation sans modifier vos paramètres, vous acceptez l'utilisation de cookies susceptibles de réaliser des statistiques de visite. Cliquez ici pour plus d'informations