2 plateaux t2 en rdc - genay

— Genay 69730 —
105 000 €
52 m²
2 pièces
balcon/terrasse

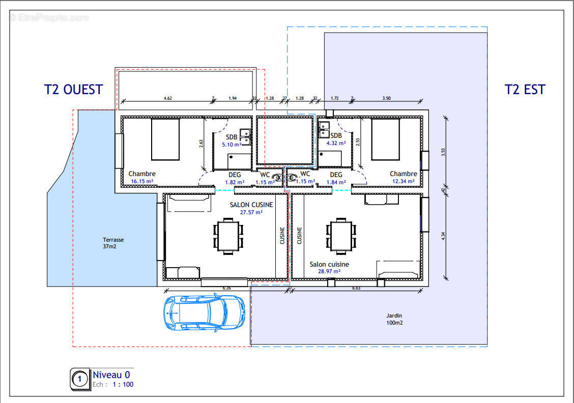
Sur la commune de Genay, découvrez deux plateaux bruts de type T2 en rez-de-chaussée, offrant de belles possibilités d'aménagement selon vos envies.

Plateau n°1 – 52 m² avec terrasse de 50 m² : 105 000 €
• Superficie : 52 m²
• Orientation : Sud / Sud-Ouest
• Extérieur : Grande terrasse bien exposée de 37 m²
• Travaux à prévoir : second œuvre et remplacement des menuiseries
• Inclus : 1 place de stationnement

Plateau n°2 – 48 m² avec jardin de 100 m² : 105 000 €
• Superficie : 48 m²
• Orientation : Sud / Sud-Est
• Extérieur : Jardin de 100 m², idéal pour profiter d'un espace verdoyant
• Travaux à prévoir : second œuvre, agrandissement de fenêtres et remplacement des menuiseries
• Inclus : 1 place de stationnement

Devis aménagement second œuvre hors cuisine : 40 000€
Menuiseries extérieures : entre 7 000 et 10 000€

Informations copropriété
• Petite copropriété de 4 lots
• Aucune charge, hormis l'assurance obligatoire

Ces deux plateaux offrent un réel potentiel d'aménagement et constituent une belle opportunité pour un projet d'investissement ou de résidence principale.

Les informations sur les risques auxquels ce bien est exposé sont disponibles sur le site Géorisques : www.georisques.gouv.fr
Voir plus

Référence: 694e7e80d839c
Bien en copropriété. Nombre de lots : 4.
DPE
A
B
C
D
E
F
G
GES
A
B
C
D
E
F
G

Prêt immobilier

Vous souhaitez connaître votre capacité d’emprunt et trouver le meilleur crédit immobilier ?
Réaliser une simulation gratuite

Appartement à GENAY
Appartement à GENAY
Appartement à GENAY
Appartement à GENAY
Appartement à GENAY
Appartement à GENAY
Appartement à GENAY
Appartement à GENAY
Appartement à GENAY
Appartement à GENAY
Ce site est protégé par reCAPTCHA la Politique de confidentialité et les Conditions d’utilisation de Google s’appliquent.
Obtenir un prêt immobilier au meilleur taux ?

En poursuivant votre navigation sans modifier vos paramètres, vous acceptez l'utilisation de cookies susceptibles de réaliser des statistiques de visite. Cliquez ici pour plus d'informations