Très beau terrain vue montagne à Figari avec PC accordé pour villa avec piscine et pool house.

— Figari 20114 —
275 000 €
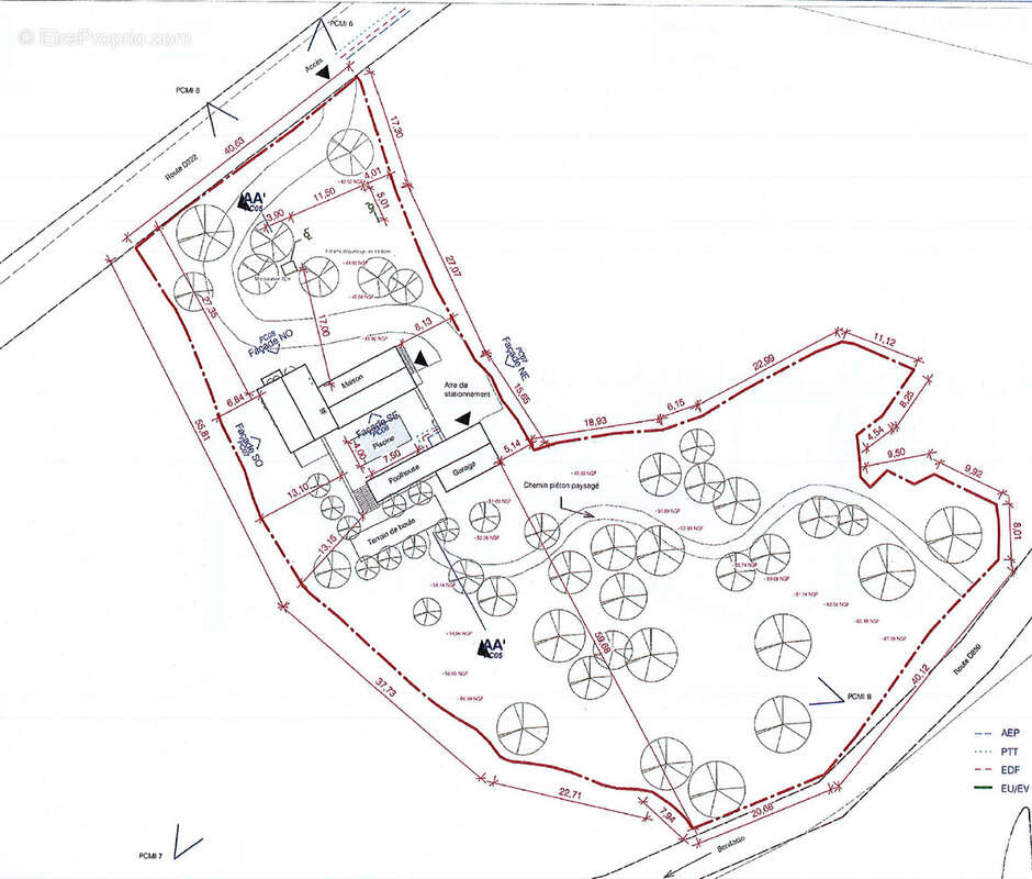
5 848 m²
jardin

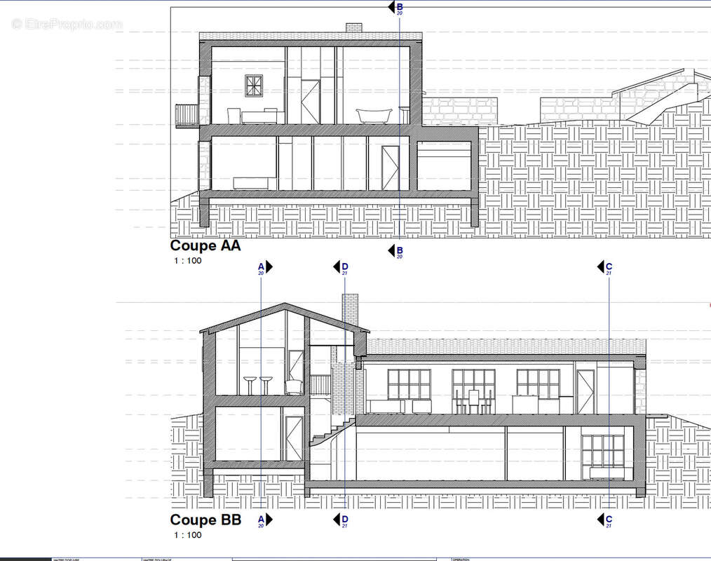
Ce terrain arboré de 5 848 m2 situé à proximité des commodités du village de Figari offre une vue dégagée sur le massif de Cagna. Un permis de construire réalisé par un architecte de renom a été accordé et purgé de tous recours pour la construction d'une villa individuelle de type bergerie avec piscine, pool house et garage, le tout d'une superficie habitable de 230 m2. Très beau projet architectural qui trouve son inspiration dans l'architecture vernaculaire corse et qui s'insère parfaitement dans l'environnement de ce terrain doté d'un cachet certain grâce à ses enrochements, ses oliviers pluricentenaires, ses figuiers de barbarie et ses murets en pierres sèches.
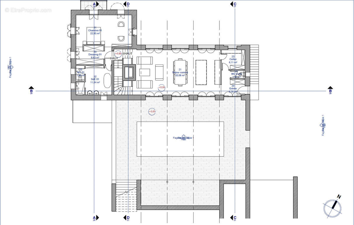
La maison est composée de matériaux tradionnels et de matériaux anciens recyclés, l'aile pricipale revêt le caractère de 'maison de Maître', tandis que l'aile transversale, en pierres de ramassage, a un aspect de type 'caseddu'. Elle permettra d'accueillir, répartis sur 2 niveaux: 4 chambres avec salles d'eau privatives, un salon/cuisine de 53 m2, un cellier, une buanderie, une cave à vin et des espaces extérieurs soignés avec pool house, piscine, terrain de boules, garage.
Un accès piéton au centre du village peut être facilement aménagé, rendant ainsi les commerces et les écoles accessibles à pied.
Figari est un village en plein essor où il fait bon vivre. L'aéroport est à 5 min de voiture, sans en subir les nuisances, les plages de Figari et Pianottoli sont à 10 min, Porto-Vecchio et Bonifacio à 20min.
Assainissement individuel à prévoir.
On aime: la vue dégagée sur la montagne de Cagna +++, le cachet du terrain++, la proximité avec les commodités+, le permis accordé réalisé par un architecte de renom qui garantit la faisabilité du projet+++
N'hésitez pas à nous contacter pour davantage de renseignements.
Voir plus

Référence: 56
Honoraires d'agence de 5.77% à la charge de l'acquéreur
Barème des honoraires
Terrain à FIGARI
Terrain à FIGARI
Terrain à FIGARI
Terrain à FIGARI
Terrain à FIGARI
Terrain à FIGARI
Terrain à FIGARI
Terrain à FIGARI
Terrain à FIGARI
Terrain à FIGARI
Terrain à FIGARI
Terrain à FIGARI
Terrain à FIGARI
Terrain à FIGARI
Terrain à FIGARI
Terrain à FIGARI
Terrain à FIGARI
Terrain à FIGARI
Terrain à FIGARI
Terrain à FIGARI
Terrain à FIGARI
Terrain à FIGARI
Géorisques

Les informations sur les risques auxquels ce bien est exposé sont disponibles sur le site Géorisques : www.georisques.gouv.fr

Ce site est protégé par hCaptcha Politique de confidentialité et Conditions d’utilisation s’appliquent.

En poursuivant votre navigation sans modifier vos paramètres, vous acceptez l'utilisation de cookies susceptibles de réaliser des statistiques de visite. Cliquez ici pour plus d'informations