Bénéficiez des services de nos partenaires locaux soigneusement sélectionnés
pour vous accompagner dans votre parcours d'achat immobilier

Maison sainte genevieve des bois 4 pièce(s) 82 m²

— Sainte-Genevieve-Des-Bois 91700 —
296 400 €
82 m² / 715 m²
4 pièces
parkingjardin

Nos partenaires locaux
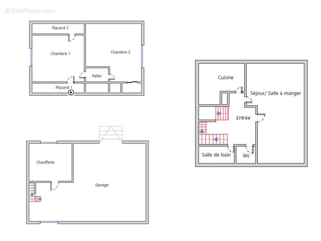
91700 - Sainte Geneviève des Bois: Située dans le quartier recherché du vieux Perray, à 5 min à pied de la gare RER C (20 min de Paris) et ses commerces, des promenades du parc de l'orge, des écoles de la Boële et lycée Jules Ferry. Cette maison non mitoyenne de 4 pièces est composée en Rdc sur élevé: d'une cuisine dinatoire indépendante et d'un séjour-salle à manger de 29 m² (qui peut être transformé en Séjour et chambre selon les besoins) ainsi que d'une salle de bain et wc séparé.
A l'étage: 2 grandes chambres de 12 et 14 m² et 2 greniers de 6 m² environ à aménager (salle d'eau, dressing ou bureau).
Au sous sol: Garage, cave, chaufferie et buanderie.
Rénovation à prévoir.
Autres atouts de cette maison: Chauffage au gaz, fenêtres double vitrage, parquet en chêne et belle hauteur sous plafond, plusieurs places de stationnement dans la cours.
DPE : Classe E et GES : classe E - Montant moyen estimé des dépenses annuelles d'énergie pour un usage standard établi à partir des prix de l'énergie de 1690 euros à 2340 euros.
Ce bien vous est proposé au prix de 296 400 euros incluant les honoraires de 3,99% à la charge de l'acquéreur.
La présente annonce a été rédigée sous la responsabilité éditoriale de Marc Cornero, mandat de vente N° 400544 - RCS 829 541 804 R.S.A.C Evry et agissant sous le statut d'agent commercial auprès de la SAS PROPRIETES PRIVEES, Réseau national immobilier sur internet, ZAC du Chêne Ferré, 44 Allée des Cinq Continents, 44120 VERTOU. Carte professionnelle T et G n° CPI 44[Coordonnées masquées]10 388 CCI Nantes-Saint Nazaire, Garantie GALIAN, 89 rue La Boétie, 75008 Paris - T : 1 500 000 euros - G : 120 000 euros.
Pour visiter et vous accompagner dans votre projet, contactez Marc CORNERO, au [Coordonnées masquées] ou par courriel à [Coordonnées masquées].
(4.00 % honoraires TTC à la charge de l'acquéreur.)

Marc CORNERO (EI) Agent Commercial - Numéro RSAC : EVRY 829541804 - .
Les informations sur les risques auxquels ce bien est exposé sont disponibles sur le site Géorisques : www. georisques. gouv. fr
Voir plus

Référence: 430544MCO
Honoraires d'agence de 4% à la charge de l'acquéreur
DPE
A
B
C
D
E
F
G
GES
A
B
C
D
E
F
G

Prêt immobilier

Vous souhaitez connaître votre capacité d’emprunt et trouver le meilleur crédit immobilier ?
Réaliser une simulation gratuite

Maison à SAINTE-GENEVIEVE-DES-BOIS
Maison à SAINTE-GENEVIEVE-DES-BOIS
Maison à SAINTE-GENEVIEVE-DES-BOIS
Maison à SAINTE-GENEVIEVE-DES-BOIS
Maison à SAINTE-GENEVIEVE-DES-BOIS
Maison à SAINTE-GENEVIEVE-DES-BOIS
Maison à SAINTE-GENEVIEVE-DES-BOIS
Maison à SAINTE-GENEVIEVE-DES-BOIS
Maison à SAINTE-GENEVIEVE-DES-BOIS
Maison à SAINTE-GENEVIEVE-DES-BOIS
Maison à SAINTE-GENEVIEVE-DES-BOIS
Maison à SAINTE-GENEVIEVE-DES-BOIS
Ce site est protégé par reCAPTCHA la Politique de confidentialité et les Conditions d’utilisation de Google s’appliquent.
Obtenir un prêt immobilier au meilleur taux ?

En poursuivant votre navigation sans modifier vos paramètres, vous acceptez l'utilisation de cookies susceptibles de réaliser des statistiques de visite. Cliquez ici pour plus d'informations