Maison etiolles 4 chambres

— Etiolles 91450 —
329 000 €
108 m² / 438 m²
7 pièces

OPPORTUNITE!!
Maison meulière Coup de Coeur à Étiolles - 104 m² CARREZ / 108 m² au sol

Charme, confort et cadre de vie privilégié - A découvrir sans tarder !

Dans un environnement calme et verdoyant, au coeur de la très prisée commune d'Étiolles, cette jolie maison familiale allie caractère, fonctionnalité et qualité de vie.

Un intérieur lumineux et chaleureux

Dès l'entrée, vous serez séduit par une ambiance douce et accueillante :

Salon baigné de lumière propice à la détente

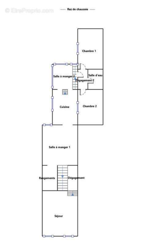
Salle à manger conviviale, idéale pour les repas en famille ou entre amis

Cuisine aménagée et fonctionnelle, avec accès direct sur le jardin : parfait pour les petits-déjeuners au soleil

4 chambres - 2 salles de bains : le confort pour toute la famille

Rez-de-chaussée :
- 2 chambres paisibles
- 1 salle d'eau avec WC

A l'étage :
- 2 chambres pleines de charme sous les toits
- 1 salle de bain contemporaine
- 1 WC indépendant

- Un extérieur qui invite à la détente

Profitez d'un jardin arboré et fleuri, sans vis-à-vis, et d'une terrasse ensoleillée : un cadre idyllique pour les enfants, les repas d'été ou simplement savourer le calme environnant.

Prestations et équipements modernes
Chauffage individuel au gaz
Fibre optique et câble TV
Maison clé en main, bien entretenue

- Localisation stratégique et cadre naturel
A proximité immédiate des écoles, commerces, transports
A 10 min des centres commerciaux : CarréSénart (Lieusaint) - L'Agora (Evry) ou encore de Villabé

Accès rapide :
- N104 et N7 à moins de 5 min
- A6 à 5 km

A deux pas de la forêt de Sénart, pour les balades et les activités en plein air

PRIX DE VENTE : 329.000 euros FAI (Honoraires à la charge du vendeur)

DPE: E - GES: E
Montant estimé des dépenses annuelles d'énergie pour un usage standard entre 2420 et 3350 euros indexées aux années 2021, 2022 et 2023.
Pour visiter et vous accompagner dans votre projet, contactez Muriel GARNIER, au [Coordonnées masquées] ou, par courriel à [Coordonnées masquées].
Selon l'article L.561.5 du Code Monétaire et Financier, pour l'organisation de la visite, la présentation d'une pièce d'identité vous sera demandée.
Cette présente annonce a été rédigée sous la responsabilité éditoriale de Muriel GARNIER agissant sous le statut d'agent commercial immatriculé au RSAC EVRY 981 209 620 auprès de SAS PROPRIETES PRIVEES, au capital de 44 920 euros, ZAC LE CHÊNE FERRÉ - 44 ALLÉE DES CINQ CONTINENTS 44120 VERTOU; SIRET 487 624 777 00040, RCS Nantes. Carte Professionnelle Transactions sur immeubles et fonds de commerce (T) et Gestion immobilière (G) n°CPI 44[Coordonnées masquées]10 388 délivrée par la CCI Nantes - Saint Nazaire. Compte séquestre n°3[Coordonnées masquées] BPA SAINT-SEBASTIEN-SUR-LOIRE (44230). Garantie GALIAN-SMABTP - 89 rue de la Boétie, 75008 Paris - n°28137 J pour 2 000 000 euros pour T et 120 000 euros pour G. Assurance responsabilité civile professionnelle par GALIAN-SMABTP n° de police 28137.J

Mandat réf : 418392 - Le professionnel garantit et sécurise votre projet immobilier.

Muriel GARNIER (EI) Agent Commercial - Numéro RSAC : EVRY 981 209 620 - .
Les informations sur les risques auxquels ce bien est exposé sont disponibles sur le site Géorisques : www. georisques. gouv. fr
Voir plus

Référence: 418413MURG
Honoraires à la charge du vendeur.
DPE
A
B
C
D
E
F
G
GES
A
B
C
D
E
F
G

Prêt immobilier

Vous souhaitez connaître votre capacité d’emprunt et trouver le meilleur crédit immobilier ?
Réaliser une simulation gratuite

Maison à ETIOLLES
Maison à ETIOLLES
Maison à ETIOLLES
Maison à ETIOLLES
Maison à ETIOLLES
Maison à ETIOLLES
Maison à ETIOLLES
Maison à ETIOLLES
Maison à ETIOLLES
Maison à ETIOLLES
Maison à ETIOLLES
Maison à ETIOLLES
Maison à ETIOLLES
Maison à ETIOLLES
Maison à ETIOLLES
Maison à ETIOLLES
Maison à ETIOLLES
Maison à ETIOLLES
Ce site est protégé par reCAPTCHA la Politique de confidentialité et les Conditions d’utilisation de Google s’appliquent.
Obtenir un prêt immobilier au meilleur taux ?

En poursuivant votre navigation sans modifier vos paramètres, vous acceptez l'utilisation de cookies susceptibles de réaliser des statistiques de visite. Cliquez ici pour plus d'informations