Bénéficiez des services de nos partenaires locaux soigneusement sélectionnés
pour vous accompagner dans votre parcours d'achat immobilier

Appartement rénové avec vue panoramique

— Rillieux-La-Pape 69140 —
145 000 €
67 m²
3 pièces
balcon/terrasseascenseur

Nos partenaires locaux
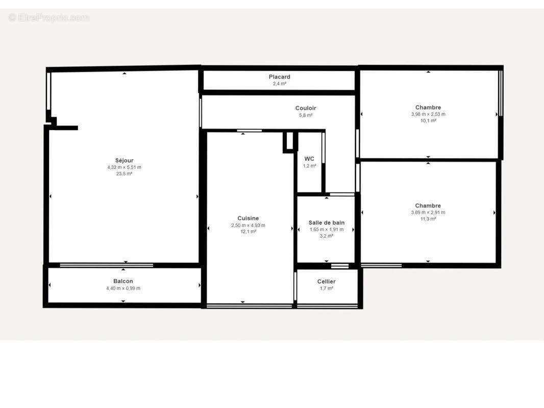
Imaginez-vous vivre dans cet appartement lumineux de 67 m², perché au 9ème étage d'une résidence paisible à Rillieux-la-Pape. Ce nid douillet vous accueille avec une pièce de vie spacieuse, inondée de lumière, qui s'ouvre sur un balcon avec une vue imprenable sur la chaîne des Alpes. Une cuisine fermée et bien pensée complète l'espace jour, tandis que le cellier, attenant, assure un rangement optimal pour votre confort.

La partie nuit se compose de deux chambres agréables, accompagnées d'une salle de bains moderne et d'un WC indépendant. Les sols sont entièrement carrelés, conférant un style moderne à l'ensemble, et les huisseries ont récemment été renouvelées pour un confort maximisé.

Cet appartement bénéficie d'un environnement calme, à proximité immédiate des bus C2, C5, 59 et Z8, facilitant vos déplacements quotidiens. Les écoles primaires et secondaires ainsi que des commerces variés sont accessibles à pied, rendant le quotidien d'autant plus plaisant.

Caractéristiques techniques

- Surface : 67 m²
- Étage : 9ème sur 10
- Chauffage : collectif
- Beau balcon de 5 m²
- Cave : oui, 3 m²
- DPE : C
- Taxe foncière : 100 euros
- Charges mensuelles de copropriété : 177 euros

Les informations sur les risques auxquels ce bien est exposé sont disponibles sur le site Géorisques : www.georisques.gouv.fr.

Annonce présentée par Zefir.
Voir plus

Référence: 4a080433-1b9f-4d48-a459-b123e5
Honoraires à la charge du vendeur.
DPE
A
B
C
D
E
F
G
GES
A
B
C
D
E
F
G

Prêt immobilier

Vous souhaitez connaître votre capacité d’emprunt et trouver le meilleur crédit immobilier ?
Réaliser une simulation gratuite

Appartement à RILLIEUX-LA-PAPE
Appartement à RILLIEUX-LA-PAPE
Appartement à RILLIEUX-LA-PAPE
Appartement à RILLIEUX-LA-PAPE
Appartement à RILLIEUX-LA-PAPE
Appartement à RILLIEUX-LA-PAPE
Appartement à RILLIEUX-LA-PAPE
Appartement à RILLIEUX-LA-PAPE
Appartement à RILLIEUX-LA-PAPE
Appartement à RILLIEUX-LA-PAPE
Appartement à RILLIEUX-LA-PAPE
Ce site est protégé par reCAPTCHA la Politique de confidentialité et les Conditions d’utilisation de Google s’appliquent.
Obtenir un prêt immobilier au meilleur taux ?

En poursuivant votre navigation sans modifier vos paramètres, vous acceptez l'utilisation de cookies susceptibles de réaliser des statistiques de visite. Cliquez ici pour plus d'informations