Bénéficiez des services de nos partenaires locaux soigneusement sélectionnés
pour vous accompagner dans votre parcours d'achat immobilier

Appartement 42m² à villiers-sur-marne

— Villiers-Sur-Marne 94350 —
199 000 €
42 m²
2 pièces
parkingascenseur

Nos partenaires locaux
EXCLUSIVITE Agence IMMO-E

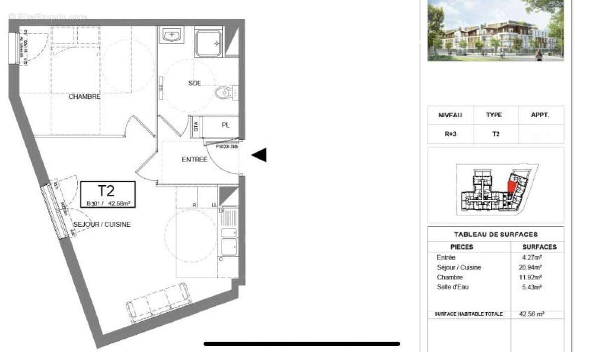
*Dans un secteur avec toutes commodités (transports / commerces/ accès A4 simple) nous vous proposons cet appartement de Type F2 dans une copropriété sous garantie décennale de 2018, au 3ème et dernier étage avec ascenseur.

*Agencement suivant :
-Surface du bien : 42.56 m²
-Entrée avec placard 4.27 m²
-Salle d'eau avec WC : 5.43 m²
-Salon / Séjour / Cuisine :20.94 m²
-Chambre : 11.92 m²

*Bon état général, espace de vie et chambre coté jardin au calme, copropriété sécurisée 'Vigik X2 + digicode', ascenseur, local vélos /poussettes, place de parking en sous-sol.

*Ideal 1er achat et investissement locatif : 'possibilité de rentabilité +5% avec Loyer de 900 €'.

*Charges mensuelles de 152 € environ comprenant chauffage central au gaz / eau chaude / entretien copropriété + ascenseur...

*Pour plus renseignements contactez nous.

*Vidéo immersive et rétrospective du bien sur demande.

*PRIX 199 000 € honoraires charge vendeur barème





. Les informations sur les risques auxquels ce bien est exposé sont disponibles sur le site Géorisques : www.georisques.gouv.fr
Voir plus

Référence: IME1812
Honoraires à la charge du vendeur.
DPE
A
B
C
D
E
F
G
GES
A
B
C
D
E
F
G

Prêt immobilier

Vous souhaitez connaître votre capacité d’emprunt et trouver le meilleur crédit immobilier ?
Réaliser une simulation gratuite

Appartement à VILLIERS-SUR-MARNE
Appartement à VILLIERS-SUR-MARNE
Appartement à VILLIERS-SUR-MARNE
Appartement à VILLIERS-SUR-MARNE
Appartement à VILLIERS-SUR-MARNE
Appartement à VILLIERS-SUR-MARNE
Ce site est protégé par reCAPTCHA la Politique de confidentialité et les Conditions d’utilisation de Google s’appliquent.
Obtenir un prêt immobilier au meilleur taux ?

En poursuivant votre navigation sans modifier vos paramètres, vous acceptez l'utilisation de cookies susceptibles de réaliser des statistiques de visite. Cliquez ici pour plus d'informations