Bénéficiez des services de nos partenaires locaux soigneusement sélectionnés
pour vous accompagner dans votre parcours d'achat immobilier

Centre bourg -plateau t-3 en duplex à aménager

— Grezieu-La-Varenne 69290 —
203 710 €
73 m²
3 pièces

Nos partenaires locaux
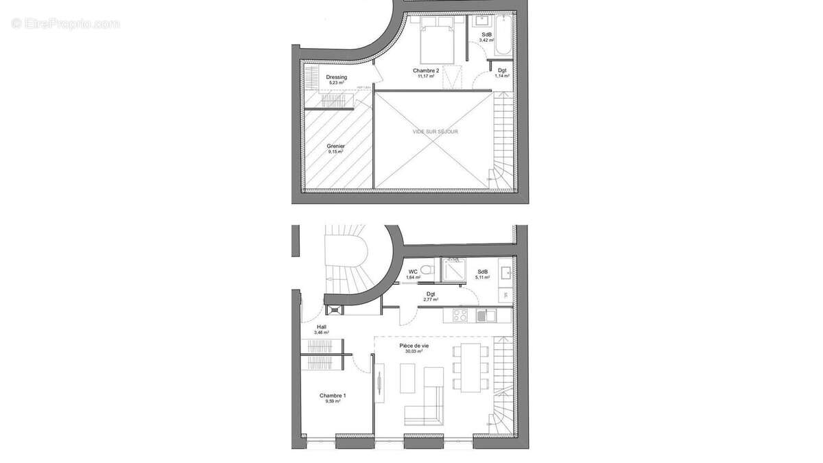
Plateau T-3 en duplex à aménager, d'env 73 m² hab + grenier. L'aménagement proposé prévoit une cuisine ouverte moderne, fonctionnelle et conviviale, ouverte sur un séjour, salle à manger, 2 chambres, une salle de bains, une salle d'eau et un grenier de rangement. Un devis - chiffrage pour l'aménagement est disponible, les parties communes seront rénovées par le vendeur. Les écoles, commerces, restaurants, et transports TCL sont accessibles à pied. Non soumis au DPE. Perspective non contractuelle. Pour plus de renseignement : Votre agence Sélection Immobilier à Grezieu La Varenne Copropriété de 11 lots. Charges annuelles : 1200 euros.
Voir plus

Bien en copropriété. Nombre de lots : 11. Charges de copropriété : 1200 €. Procédure en cours : Procédure en cours.

Prêt immobilier

Vous souhaitez connaître votre capacité d’emprunt et trouver le meilleur crédit immobilier ?
Réaliser une simulation gratuite

Appartement à GREZIEU-LA-VARENNE
Appartement à GREZIEU-LA-VARENNE
Appartement à GREZIEU-LA-VARENNE
Appartement à GREZIEU-LA-VARENNE
Ce site est protégé par reCAPTCHA la Politique de confidentialité et les Conditions d’utilisation de Google s’appliquent.
Obtenir un prêt immobilier au meilleur taux ?

En poursuivant votre navigation sans modifier vos paramètres, vous acceptez l'utilisation de cookies susceptibles de réaliser des statistiques de visite. Cliquez ici pour plus d'informations