Bénéficiez des services de nos partenaires locaux soigneusement sélectionnés
pour vous accompagner dans votre parcours d'achat immobilier

A vendre appartement t2 - saint luc kerichen - terrasse garage

— Brest 29200 —
133 750 €
49 m²
2 pièces
ascenseur

Nos partenaires locaux
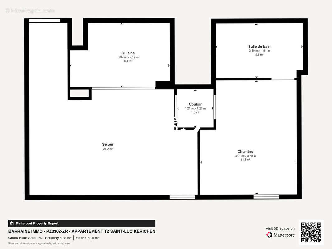
A VENDRE EXCLUSIVITE BREST SAINT-LUC KERICHEN - APPARTEMENT T2 TERRASSE ET GARAGE Ref; PZ0302-ZR Bel appartement au 2e et dernier étage d'une copropriété récente avec ascenseur. Ce bien lumineux se compose d'une entrée desservant un séjour ouvrant sur une grande terrasse de plus de 13 m², d'une cuisine ouverte, et d'un espace nuit comprenant une chambre d'environ 12 m², une salle de bains et un WC séparé. En complément, un garage en sous-sol sécurise votre stationnement. Emplacement idéal : au pied de l'immeuble (boulangerie, pharmacie, commerces) et à proximité immédiate des écoles et des transports. Exposition agréable offrant un excellent ensoleillement. Un cadre de vie pratique et confortable, à visiter sans tarder. Pour votre confort, le chauffage est au gaz avec des radiateurs et l'eau chaude est produite par une chaudière. L'appartement est idéalement situé à proximité de plusieurs écoles, notamment le Groupe Scolaire de Kerichen et le Lycée La Pérouse-Kérichen, ainsi que de nombreux parcs et restaurants. Ne manquez pas cette opportunité, contactez l'Agence Barraine IMMO - Plouzané pour plus d'informations. (7.00 % honoraires TTC à la charge de l'acquéreur.) Copropriété de 34 lots - dont 17 lots habitation. (Pas de procédure en cours). Charges annuelles : 866 euros.
Voir plus

Bien en copropriété. Nombre de lots : 34. Charges de copropriété : 866 €.
Honoraires d'agence de 7% à la charge de l'acquéreur
Barème des honoraires
DPE
A
B
C
D
E
F
G
GES
A
B
C
D
E
F
G

Prêt immobilier

Vous souhaitez connaître votre capacité d’emprunt et trouver le meilleur crédit immobilier ?
Réaliser une simulation gratuite

Appartement à BREST
Appartement à BREST
Appartement à BREST
Appartement à BREST
Appartement à BREST
Appartement à BREST
Appartement à BREST
Appartement à BREST
Appartement à BREST
Appartement à BREST
Appartement à BREST
Appartement à BREST
Appartement à BREST
Appartement à BREST
Appartement à BREST
Appartement à BREST
Appartement à BREST
Appartement à BREST
Appartement à BREST
Appartement à BREST
Ce site est protégé par reCAPTCHA la Politique de confidentialité et les Conditions d’utilisation de Google s’appliquent.
Obtenir un prêt immobilier au meilleur taux ?

En poursuivant votre navigation sans modifier vos paramètres, vous acceptez l'utilisation de cookies susceptibles de réaliser des statistiques de visite. Cliquez ici pour plus d'informations