Maison 83m² à saint-uze

— Saint-Uze 26240 —
77 000 €
83 m² / 57 m²
4 pièces
jardin

Iad France - Audrey Gillot vous propose : ! SOUS-OFFRE !

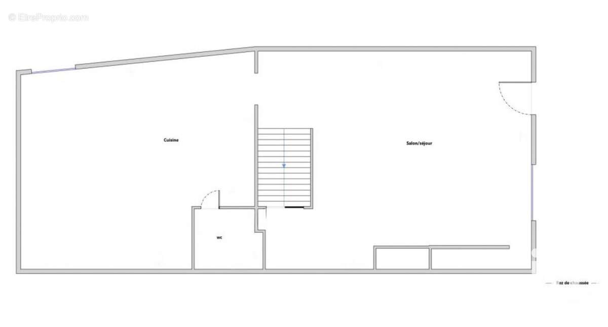
EXCLUSIVITÉ - Saint-Uze - Maison de village 83 m² sur 3 niveaux, parfaite pour un 1er achat ou un projet locatif. Idéalement située en plein coeur du village, proche des commerces et commodités.

Elle est composée de:

Au rez-de-chaussée : pièce de vie de 22 m², cuisine (pièce aveugle), WC

1er étage : grande chambre ou salon, petite chambre ou bureau de 7 m², salle d'eau avec WC sanibroyeur.

2ème étage : grande pièce ouverte de près de 20 m² et très lumineuse avec 2 vélux neufs pouvant être aménagée en chambre, salon, salle de jeux etc.

Double vitrage PVC, volets roulants électriques,
Chauffage individuel au gaz de ville avec chaudière remplacée en 2018
La cheminée su séjour n'est plus fonctionnelle = conduit retiré dans les étages
Rue en sens unique, parking gratuit dans la rue
Petite cave sous la montée d'escalier du rez-de-chaussée

Mieux qu'un appartement, devenez propriétaire sans charges de copropriété !

Un projet immobilier ? Achat, Vente, Location, Viager ? Contactez-moi.

Honoraires d'agence à la charge du vendeur.
Information d'affichage énergétique sur ce bien : classe ENERGIE C indice 175 et classe CLIMAT C indice 23. Les informations sur les risques auxquels ce bien est exposé, y compris l'obligation légale de débroussaillement, sont disponibles sur le site Géorisques : http://www.georisques.gouv.fr.
La présente annonce immobilière a été rédigée sous la responsabilité éditoriale de Mme Audrey Gillot mandataire indépendant en immobilier (sans détention de fonds), agent commercial de la SAS I@D France immatriculé au RSAC de ROMANS sous le numéro 890101694, titulaire de la carte de démarchage immobilier pour le compte de la société I@D France SAS.
Informations LOI ALUR :
Honoraires charge vendeur. (gedeon_6727_31932746)
Voir plus

Référence: 1853809
Honoraires à la charge du vendeur.
DPE
A
B
C
D
E
F
G
GES
A
B
C
D
E
F
G

Prêt immobilier

Vous souhaitez connaître votre capacité d’emprunt et trouver le meilleur crédit immobilier ?
Réaliser une simulation gratuite

Photo 1 - Maison à SAINT-UZE
Photo 1
Photo 2 - Maison à SAINT-UZE
Photo 2
Photo 3 - Maison à SAINT-UZE
Photo 3
Photo 4 - Maison à SAINT-UZE
Photo 4
Photo 5 - Maison à SAINT-UZE
Photo 5
Photo 6 - Maison à SAINT-UZE
Photo 6
Photo 7 - Maison à SAINT-UZE
Photo 7
Photo 8 - Maison à SAINT-UZE
Photo 8
Photo 9 - Maison à SAINT-UZE
Photo 9
Ce site est protégé par reCAPTCHA la Politique de confidentialité et les Conditions d’utilisation de Google s’appliquent.
Obtenir un prêt immobilier au meilleur taux ?

En poursuivant votre navigation sans modifier vos paramètres, vous acceptez l'utilisation de cookies susceptibles de réaliser des statistiques de visite. Cliquez ici pour plus d'informations