Maison 110m² à saint-vallier

— Saint-Vallier 26240 —
335 000 €
110 m² / 800 m²
5 pièces
balcon/terrassejardin

Iad France - Audrey Gillot vous propose : À VENDRE - Saint-Vallier (26240) - Villa de plain-pied NEUVE RE2020 de 110 m² environ sur un terrain PLAT de 800 m² de idéalement située sur les hauteurs avec une MAGNIFIQUE VUE dégagée. Livraison prévue : juin 2026.

À seulement 5 min de toutes commodités et grands axes routiers (N7, gare, commerces, écoles. ) et située dans un environnement CALME et résidentiel, cette villa offre des prestations de qualité conforme à la réglementation RE2020 (haute performance énergétique).

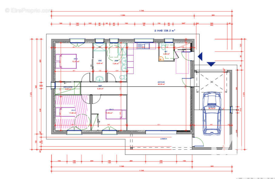
Elle sera composée de : Une GRANDE et LUMINEUSE pièce à vivre TRAVERSANTE (environ 50 m²) avec cuisine aménagée et équipée donnant sur terrasse et jardin, 3 chambres dont une suite parentale de 20 m² avec son dressing et sa salle d'eau privative, une salle de bains / wc, wc, rangements intégrés, un garage de 25 m² avec porte motorisée et coin buanderie (garage DOUBLE réalisable en option). Livré clôturé avec son portail électrique et visiophone installés.

Chauffage : Pompe à chaleur gainable et réversible pour un confort optimal été comme hiver.

Vous pourrez choisir selon vos goûts différents modèles de : cuisine, carrelage 60×120 cm, effet parquet pour les chambres, portes de fin de chantier.

Pour plus d'informations, contactez-nous par téléphone!

Honoraires d'agence à la charge du vendeur.
Bien non soumis au DPE. Les informations sur les risques auxquels ce bien est exposé, y compris l'obligation légale de débroussaillement, sont disponibles sur le site Géorisques : http://www.georisques.gouv.fr.
La présente annonce immobilière a été rédigée sous la responsabilité éditoriale de Mme Audrey Gillot mandataire indépendant en immobilier (sans détention de fonds), agent commercial de la SAS I@D France immatriculé au RSAC de ROMANS sous le numéro 890101694, titulaire de la carte de démarchage immobilier pour le compte de la société I@D France SAS.
Informations LOI ALUR :
Honoraires charge vendeur. (gedeon_6727_32371277)
Voir plus

Référence: 1911162
Honoraires à la charge du vendeur.

Prêt immobilier

Vous souhaitez connaître votre capacité d’emprunt et trouver le meilleur crédit immobilier ?
Réaliser une simulation gratuite

Photo 1 - Maison à SAINT-VALLIER
Photo 1
Photo 2 - Maison à SAINT-VALLIER
Photo 2
Photo 3 - Maison à SAINT-VALLIER
Photo 3
Photo 4 - Maison à SAINT-VALLIER
Photo 4
Photo 5 - Maison à SAINT-VALLIER
Photo 5
Photo 6 - Maison à SAINT-VALLIER
Photo 6
Photo 7 - Maison à SAINT-VALLIER
Photo 7
Photo 8 - Maison à SAINT-VALLIER
Photo 8
Photo 9 - Maison à SAINT-VALLIER
Photo 9
Ce site est protégé par reCAPTCHA la Politique de confidentialité et les Conditions d’utilisation de Google s’appliquent.
Obtenir un prêt immobilier au meilleur taux ?

En poursuivant votre navigation sans modifier vos paramètres, vous acceptez l'utilisation de cookies susceptibles de réaliser des statistiques de visite. Cliquez ici pour plus d'informations