Bénéficiez des services de nos partenaires locaux soigneusement sélectionnés
pour vous accompagner dans votre parcours d'achat immobilier

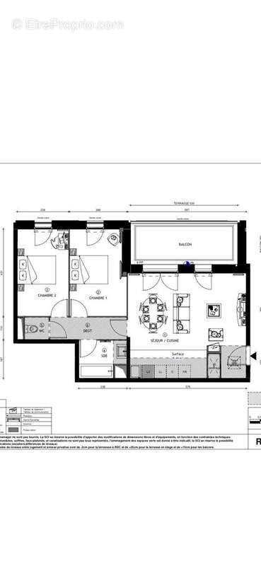
Appartement 62m² à coupvray

— Coupvray 77700 —
279 000 €
62 m²
3 pièces
balcon/terrasse

Nos partenaires locaux
Iad France - Aymeric Nguyen vous propose : COUPVRAY - CHESSY - MARNE LA VALLEE - RER A en 7 minutes - BUS AU PIEDS DE LA RESIDENCE
Résidence de standing de 2024.
Au DERNIER et 3ème étage sans ascenseur - Appartement de Type T3 Neuf jamais habité et encore SOUS GARANTIES biennales et décennales.
Il se compose : Entrée avec placards - salon - cuisine ouverte - 2 chambres - une salle de bains - un wc.
GRAND BALCON sans vis à vis.
1 place de parking en sous-sol.
Commerces, Hyper U au pied de la résidence.

La presente annonce immobiliere vise 1 lot situé dans une copropriété de 60 lots au total et ne faisant l'objet d'aucune procédure en cours citée à l'article L. 721-1 du code de la construction et de l'habitation. Montant moyen mensuel de charges déclaré par le vendeur : 100¤ par mois (soit 1200 ¤ annuel). Honoraires d'agence à la charge du vendeur.
Information d'affichage énergétique sur ce bien : classe ENERGIE B indice 91 et classe CLIMAT A indice 2. Les informations sur les risques auxquels ce bien est exposé, y compris l'obligation légale de débroussaillement, sont disponibles sur le site Géorisques : http://www.georisques.gouv.fr.
La présente annonce immobilière a été rédigée sous la responsabilité éditoriale de M Aymeric Nguyen mandataire indépendant en immobilier (sans détention de fonds), agent commercial de la SAS I@D France immatriculé au RSAC de MELUN sous le numéro 882000268, titulaire de la carte de démarchage immobilier pour le compte de la société I@D France SAS.
Informations LOI ALUR :
Soumis au régime de copropriété.
Nombre de lots : 1.
Quote part annuelle(moyenne) : 12 euros.
Honoraires charge vendeur. (gedeon_6727_32371291)
Voir plus

Référence: 1912371
Bien en copropriété. Nombre de lots : 1. Charges de copropriété : 12 €.
Honoraires à la charge du vendeur.
DPE
A
B
C
D
E
F
G
GES
A
B
C
D
E
F
G

Prêt immobilier

Vous souhaitez connaître votre capacité d’emprunt et trouver le meilleur crédit immobilier ?
Réaliser une simulation gratuite

Photo 1 - Appartement à COUPVRAY
Photo 1
Photo 2 - Appartement à COUPVRAY
Photo 2
Photo 3 - Appartement à COUPVRAY
Photo 3
Photo 4 - Appartement à COUPVRAY
Photo 4
Photo 5 - Appartement à COUPVRAY
Photo 5
Photo 6 - Appartement à COUPVRAY
Photo 6
Ce site est protégé par reCAPTCHA la Politique de confidentialité et les Conditions d’utilisation de Google s’appliquent.
Obtenir un prêt immobilier au meilleur taux ?

En poursuivant votre navigation sans modifier vos paramètres, vous acceptez l'utilisation de cookies susceptibles de réaliser des statistiques de visite. Cliquez ici pour plus d'informations