Bénéficiez des services de nos partenaires locaux soigneusement sélectionnés
pour vous accompagner dans votre parcours d'achat immobilier

Maison 115m² + dépendance

— Villeparisis 77270 —
325 000 €
115 m² / 402 m²
5 pièces
parking

Nos partenaires locaux
Découvrez cette agréable maison familiale de 115m², située dans un quartier recherché proche de toutes commodités.

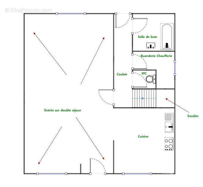
Au rez-de-chaussée :
- Entrée ouvrant sur un double séjour traversant
- Cuisine ouverte lumineuse
- Salle de bain + WC indépendant
- Buanderie

À l'étage :
- 4 belles chambres spacieuses

Les + qui font la différence :
- Dépendance de 25m² : bureau, studio, atelier… à vous de choisir !
- Cour privée avec possibilité de stationnement
- Grande terrasse sans vis à vis donnant sur le jardin

Prévoir un rafraîchissement, mais un énorme potentiel pour ce bien.

Ne tardez pas à visiter ! Contactez-moi dès maintenant pour plus d'informations.

Annonce publiée par Régis Desmoulins (EI) votre agent commercial en immobilier LF immo à Villeparisis, 77270 immatriculé au RSAC de MEAUX sous le n°978 394 294 000 18. Consultez nos tarifs sur le site LF immo.

Les informations sur les risques auxquels ce bien est exposé sont disponibles sur le site Géorisques : www.georisques.gouv.fr.
Voir plus

Référence: fr064660
Honoraires à la charge du vendeur.
DPE
A
B
C
D
E
F
G
GES
A
B
C
D
E
F
G

Prêt immobilier

Vous souhaitez connaître votre capacité d’emprunt et trouver le meilleur crédit immobilier ?
Réaliser une simulation gratuite

Maison à VILLEPARISIS
Maison à VILLEPARISIS
Maison à VILLEPARISIS
Maison à VILLEPARISIS
Maison à VILLEPARISIS
Maison à VILLEPARISIS
Maison à VILLEPARISIS
Maison à VILLEPARISIS
Maison à VILLEPARISIS
Maison à VILLEPARISIS
Maison à VILLEPARISIS
Maison à VILLEPARISIS
Ce site est protégé par reCAPTCHA la Politique de confidentialité et les Conditions d’utilisation de Google s’appliquent.
Obtenir un prêt immobilier au meilleur taux ?

En poursuivant votre navigation sans modifier vos paramètres, vous acceptez l'utilisation de cookies susceptibles de réaliser des statistiques de visite. Cliquez ici pour plus d'informations