Bénéficiez des services de nos partenaires locaux soigneusement sélectionnés
pour vous accompagner dans votre parcours d'achat immobilier

Appartement

— Lille 59800 —
139 500 €
63 m²
4 pièces
ascenseur

Nos partenaires locaux
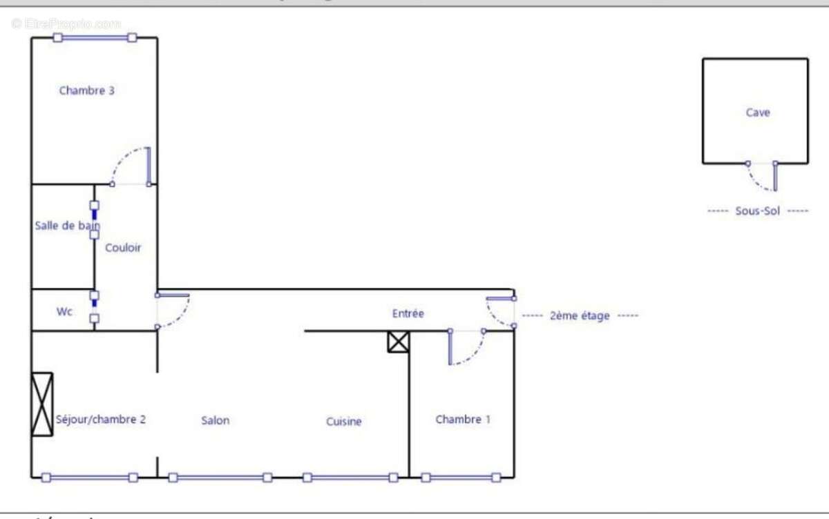
59800-LILLE-FIVES-APPARTEMENT-2eme Etage avec ASCENSEUR-4 PIECES-2 CHAMBRES-63 M²-CAVE 6m2
LIBRE D 'OCCUPATION

efficity, l'agence qui estime votre bien en ligne, vous propose cet appartement de caractère situé dans le Quartier de Lille/fives à 3mn à pied du métro 10 mn de la Gare , offrant une vue dégagée sur la partie verdoyante du parc.

Vous serez accueillis par un hall d'immeuble avec digicode, badge et interphone.

Vous y découvrirez un bel appartement A CONFORTER A VOTRE GOUT comprenant un long couloir desservant un séjour spacieux très lumineux avec un coin cuisine ouvert sur l'espace de vie d 'une contenance de 31 m², deux chambres chaleureuses de 9,5 et 11,5 m² une salle de bain avec baignoire , un wc séparé, une cave de 6m².cf plan

A noter que le bien est situé proche des transports en commun, velib, métro Fives à 2 stations de la gare, de toutes commodités ,commerces, écoles, médecin, piscine ,à 2mn des axes autoroutiers A1

Le bien est soumis au statut de copropriété, charges de copro 239 euros/mois( comprenant eau froide, eau chaude, chauffage, entretien parties communes,entretien ascenseur, electricité des parties communes)
Stationnements preservés pour les coproprietaires.
Photos avant apres avec projection par IA

N'attendez plus pour visiter ce bien!

Prix : Pour plus d'informations, contactez Mme Fontaine Dorothée au [Coordonnées masquées] ou par mail [Coordonnées masquées].
Les informations sur les risques auxquels ce bien est exposé sont disponibles sur le site Georisque : georisques. gouv. fr
Dorothee Fontaine - EI - est Agent Commercial mandataire en immobilier, immatriculé au Registre Spécial des Agents Commerciaux du Tribunal de Commerce de Arras sous le n°880855804.
Siège social du mandant : effiCity, 48 avenue de Villiers - 75017 PARIS - Société par Actions Simplifiée, société au capital de 132 373,05 euros, immatriculée au RCS Paris 497 617 746 et titulaire de la Carte professionnelle CPI 75[Coordonnées masquées]02 025 - CCI Paris IDF - Caisse de Garantie : GALIAN Assurances 89 rue de la Boétie 75008 Paris
Voir plus

Référence: 177307
Bien en copropriété. Nombre de lots : 41. Charges de copropriété : 238 €.
Honoraires d'agence de 3.72% à la charge de l'acquéreur
Barème des honoraires
DPE
A
B
C
D
E
F
G
GES
A
B
C
D
E
F
G

Prêt immobilier

Vous souhaitez connaître votre capacité d’emprunt et trouver le meilleur crédit immobilier ?
Réaliser une simulation gratuite

Appartement à LILLE
Appartement à LILLE
Appartement à LILLE
Appartement à LILLE
Appartement à LILLE
Appartement à LILLE
Appartement à LILLE
Appartement à LILLE
Appartement à LILLE
Appartement à LILLE
Appartement à LILLE
Appartement à LILLE
Appartement à LILLE
Appartement à LILLE
Ce site est protégé par reCAPTCHA la Politique de confidentialité et les Conditions d’utilisation de Google s’appliquent.
Obtenir un prêt immobilier au meilleur taux ?

En poursuivant votre navigation sans modifier vos paramètres, vous acceptez l'utilisation de cookies susceptibles de réaliser des statistiques de visite. Cliquez ici pour plus d'informations