Bénéficiez des services de nos partenaires locaux soigneusement sélectionnés
pour vous accompagner dans votre parcours d'achat immobilier

Appartement 57m² à mondeville

— Mondeville 14120 —
199 000 €
57 m²
3 pièces
parkingbalcon/terrasseascenseur

Nos partenaires locaux
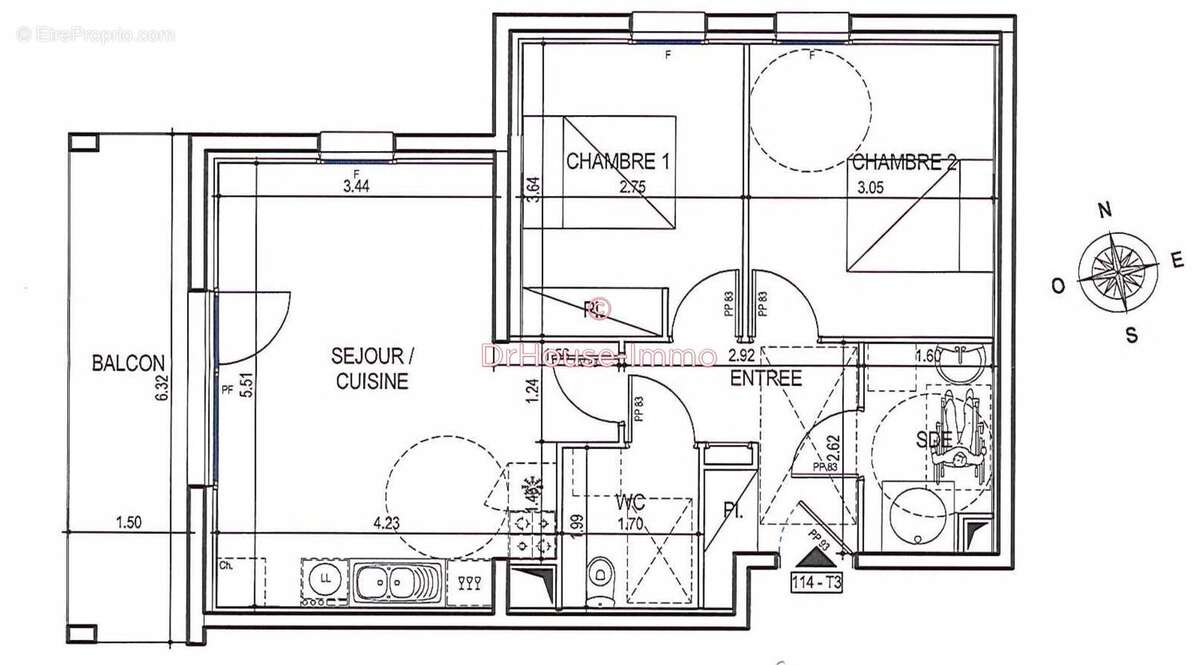
MONDEVILLE Centre – Appartement T3 de 57 m² – Résidence de standing – Parking sécurisé

Situé au cœur de Mondeville, dans une résidence récente SEDELKA, fermée, sécurisée et très bien entretenue (espaces verts, visiophone), cet appartement 3 pièces de 57 m², au 1er étage avec ascenseur, offre confort, luminosité et emplacement idéal.

Un intérieur fonctionnel et lumineux

Entrée avec placard de rangement

Séjour / salon / cuisine équipée de 22 m², très lumineux grâce à sa double exposition

2 chambres de 10 m² et 11 m², parquetées, dont une avec placard intégré

Salle d’eau avec douche

WC séparé

Confort & équipements

Chauffage gaz de ville

Compteur d’eau individuel

Faibles charges de copropriété : 78 €/mois

Stationnement & espaces communs

Place de parking privative dans la résidence fermée

Local à vélo fermé et sécurisé

Un emplacement privilégié

À proximité immédiate de toutes les commodités :
Super U, La Poste, pharmacie, boulangerie, boucherie, etc.
Bus de ville au pied de la résidence.
Centre de Caen à moins de 10 minutes à pied, un atout rare !

Un appartement lumineux, pratique et idéalement situé, parfait pour une résidence principale ou un investissement locatif.

Contactez-moi pour plus d’informations ou pour organiser une visite.

Ludovic FINEL au: [Coordonnées masquées]
N° RSAC : 908 923 204 CAEN
[Coordonnées masquées]


Les informations sur les risques auxquels ce bien est exposé sont disponibles sur le site Géorisques. www.georisques.gouv.fr.
Une pièce d'identité vous sera demandé pour toutes visites.

Retrouvez toutes les informations des risques sur :
https://www.georisques.gouv.fr Ce bien vous est présenté par Ludovic Finel, votre conseiller indépendant Dr House Immo.
Voir plus

Référence: 110268DHI3033
Bien en copropriété. Charges de copropriété : 960 €.
Honoraires à la charge du vendeur.
Barème des honoraires
DPE
A
B
C
D
E
F
G
GES
A
B
C
D
E
F
G

Prêt immobilier

Vous souhaitez connaître votre capacité d’emprunt et trouver le meilleur crédit immobilier ?
Réaliser une simulation gratuite

Appartement à MONDEVILLE
Appartement à MONDEVILLE
Appartement à MONDEVILLE
Appartement à MONDEVILLE
Appartement à MONDEVILLE
Appartement à MONDEVILLE
Appartement à MONDEVILLE
Appartement à MONDEVILLE
Appartement à MONDEVILLE
Ce site est protégé par reCAPTCHA la Politique de confidentialité et les Conditions d’utilisation de Google s’appliquent.
Obtenir un prêt immobilier au meilleur taux ?

En poursuivant votre navigation sans modifier vos paramètres, vous acceptez l'utilisation de cookies susceptibles de réaliser des statistiques de visite. Cliquez ici pour plus d'informations