Bénéficiez des services de nos partenaires locaux soigneusement sélectionnés
pour vous accompagner dans votre parcours d'achat immobilier

Résidence le rond-point des pistes – appartement 28 m² avec terrasse

— Tignes 73320 —
326 500 €
28 m²
3 pièces
parkingbalcon/terrasse

Nos partenaires locaux
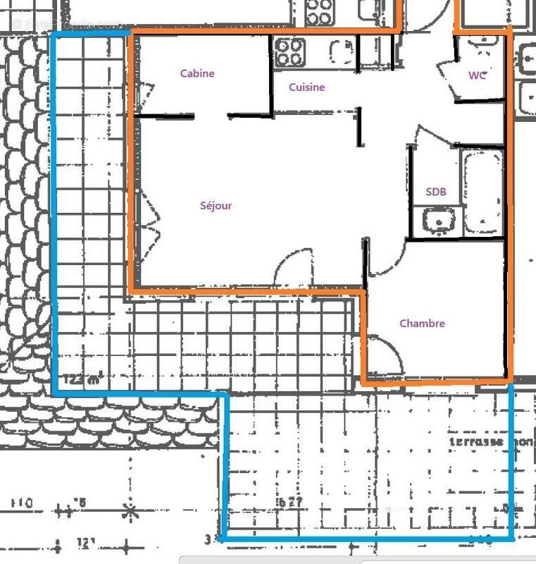
Situé dans l’une des résidences les plus appréciées de Tignes, Le Rond-Point des Pistes, cet appartement de 28 m² bénéficie d’un emplacement recherché et d’une configuration idéale pour la montagne.

Il se compose d’une chambre double, d’une cabine, d’une entrée avec placard, d’un séjour, d’une cuisine fonctionnelle, et s’ouvre sur une grande terrasse, rare en station.
L’appartement est situé au premier étage et dispose d’un casier à skis.

On aime :

la résidence prisée au cœur de Tignes
la chambre + cabine, idéale pour accueillir famille et amis
la grande terrasse, véritable espace de vie supplémentaire
le premier étage, pratique au quotidien
le casier à skis, indispensable en station
aucun travaux à prévoir dans l’immédiat

Disponible à partir du 1er mai 2026

Un bien parfaitement adapté à un pied-à-terre à la montagne ou à un investissement locatif, sans contrainte de travaux. Votre Agent Commercial : Anne [Coordonnées masquées]
Voir plus

Référence: 86592218
Barème des honoraires

Prêt immobilier

Vous souhaitez connaître votre capacité d’emprunt et trouver le meilleur crédit immobilier ?
Réaliser une simulation gratuite

Appartement à TIGNES
Appartement à TIGNES
Appartement à TIGNES
Appartement à TIGNES
Appartement à TIGNES
Appartement à TIGNES
Appartement à TIGNES
Appartement à TIGNES
Appartement à TIGNES
Appartement à TIGNES
Ce site est protégé par reCAPTCHA la Politique de confidentialité et les Conditions d’utilisation de Google s’appliquent.
Obtenir un prêt immobilier au meilleur taux ?

En poursuivant votre navigation sans modifier vos paramètres, vous acceptez l'utilisation de cookies susceptibles de réaliser des statistiques de visite. Cliquez ici pour plus d'informations