Appartement 23m² à huez

— Huez 38750 —
128 000 €
23 m²
1 pièce
ascenseur

Iad France - Cécile Fiol vous propose : Appartement de 23 m² vendu sous bail commercial à échéance fin avril 2033 avec sortie du bail sans paiement de l'indemnité d'éviction, une opportunité rare et avantageuse !
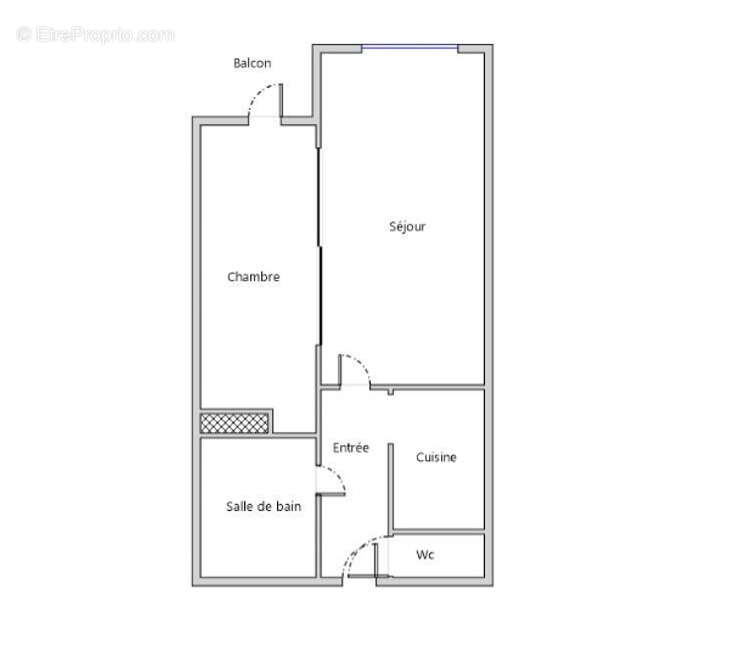
Le bien se situe au 6ème étage et dernier étage de la résidence LES BERGERS, orientation Sud avec balcon de 4.6 m².
Ce palier est desservi par 2 ascenseurs mais ne dispose que de 4 logements, gage de tranquillité même en haute saison.
D'importants travaux de rénovation énergétique ont été réalisés en 2024 au sein de la résidence : Isolation thermique par l'extérieur, rénovation de la couverture et du bardage, rénovation des étanchéités.
Dans les appartements : remplacement des menuiseries PVC, installation de radiateurs à inertie, remplacement des plaques de cuisson.
Le bien proposé est un studio adapté pour 4 couchages, coin nuit, séjour, kitchenette, salle de bain et wc séparés. Possibilité de créer une chambre séparée avec fenêtre. Vendu avec un casier à skis.
Loyer annuel HT : 6 482,57 ¤ (TVA à 10%)
Taxe Foncière : 322 ¤
Frais de gestion semestriels : 150 ¤
Charges de copropriété à la charge de l'exploitant.
Votre locataire exploitant : SDP Sunweb Group
Le quartier des Bergers offre une situation idéale, à 2 pas du front de neige, remontées mécaniques et cours de ski, retour à la résidence skis aux pieds. La galerie commerçante des Bergers vous propose aussi de nombreux magasins et restaurants.
À quelques minutes à pieds de l'Avenue des Jeux (centre station) où vous trouverez de nombreux loisirs et activités.

La presente annonce immobiliere vise 1 lot situé dans une copropriété de 125 lots au total et ne faisant l'objet d'aucune procédure en cours citée à l'article L. 721-1 du code de la construction et de l'habitation. Montant moyen mensuel de charges déclaré par le vendeur : 0¤ par mois (soit 0 ¤ annuel). Honoraires d'agence à la charge du vendeur.
Information d'affichage énergétique sur ce bien : classe ENERGIE E indice 364 et classe CLIMAT B indice 11. Les informations sur les risques auxquels ce bien est exposé, y compris l'obligation légale de débroussaillement, sont disponibles sur le site Géorisques : http://www.georisques.gouv.fr.
La présente annonce immobilière a été rédigée sous la responsabilité éditoriale de Mme Cécile Fiol mandataire indépendant en immobilier (sans détention de fonds), agent commercial de la SAS I@D France immatriculé au RSAC de GRENOBLE sous le numéro 839517471, titulaire de la carte de démarchage immobilier pour le compte de la société I@D France SAS.
Informations LOI ALUR :
Soumis au régime de copropriété.
Nombre de lots : 125.
Honoraires charge vendeur. (gedeon_6727_32374732)
Voir plus

Référence: 1903014
Bien en copropriété. Nombre de lots : 125.
Honoraires à la charge du vendeur.
DPE
A
B
C
D
E
F
G
GES
A
B
C
D
E
F
G

Prêt immobilier

Vous souhaitez connaître votre capacité d’emprunt et trouver le meilleur crédit immobilier ?
Réaliser une simulation gratuite

Photo 1 - Appartement à HUEZ
Photo 1
Photo 2 - Appartement à HUEZ
Photo 2
Photo 3 - Appartement à HUEZ
Photo 3
Photo 4 - Appartement à HUEZ
Photo 4
Photo 5 - Appartement à HUEZ
Photo 5
Photo 6 - Appartement à HUEZ
Photo 6
Photo 7 - Appartement à HUEZ
Photo 7
Photo 8 - Appartement à HUEZ
Photo 8
Photo 9 - Appartement à HUEZ
Photo 9
Ce site est protégé par reCAPTCHA la Politique de confidentialité et les Conditions d’utilisation de Google s’appliquent.
Obtenir un prêt immobilier au meilleur taux ?

En poursuivant votre navigation sans modifier vos paramètres, vous acceptez l'utilisation de cookies susceptibles de réaliser des statistiques de visite. Cliquez ici pour plus d'informations