Maison 150m² à boege

— Boege 74420 —
230 000 €
150 m² / 113 m²
6 pièces
jardin

BOËGE – A RENOVER - MAISON DE VILLAGE de 150m2 À FORT POTENTIEL – LE PROJET D'UNE VIE À CRÉER

Florence COCHARD vous propose cette authentique maison de village mitoyenne de 150 m² à réinventer, idéalement située en plein cœur de Boëge.
Répartie sur trois niveaux, elle offre 6 pièces généreuses dont 4 chambres, un volume rare permettant d'imaginer une maison familiale chaleureuse ou un projet sur mesure.
Chaque espace invite à la créativité et à la personnalisation selon vos envies et votre mode de vie.

OPTION N° 1 – Maison familiale sur 3 niveaux (150 m²)

Idéal famille / résidence principale

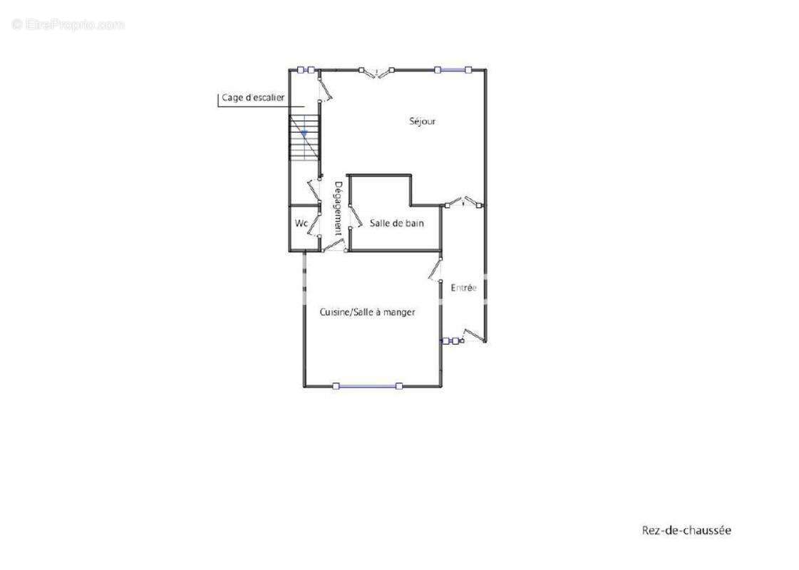
Rez-de-jardin :

Entrée avec rangements

Grande pièce de vie ouverte (salon / salle à manger)

Cuisine conviviale avec accès direct au jardin

WC indépendant

1er étage :

2 grandes chambres

Salle de bains familiale

WC séparé

2ᵉ étage :

2 chambres supplémentaires ou

Suite parentale + bureau / salle de jeux

Salle d'eau

Combles (30 m²) :

Bureau, chambre d'amis, espace télétravail ou salle de loisirs

Atout clé : une vraie maison de village avec jardin, volumes et espaces distincts pour chacun.

OPTION N°2 – Projet couple / résidence évolutive

Idéal premier achat avec valorisation

Rez-de-jardin :

Belle pièce de vie traversante

Cuisine ouverte moderne

Accès jardin pour les beaux jours

Étage :

Suite parentale avec dressing

Salle de bains

Bureau / chambre d'amis

Dernier niveau & combles :

Espaces modulables : chambre, bureau, atelier ou futur agrandissement

Atout clé : achat maîtrisé, travaux progressifs, forte valorisation à moyen terme.

OPTION N°3 – Investissement locatif – Création de 3 appartements

Idéal investisseur / marchand de biens

Rez-de-chaussée :

Appartement T2 avec accès jardin privatif

1er étage :

Appartement T2 ou T3 selon agencement

2ᵉ étage + combles :

Appartement T2/T3 avec volumes sous pente

Annexes :

Cave de 53 m² → caves privatives / local technique

Jardin valorisant l'ensemble du projet

Atout clé : division naturelle par niveaux, forte demande locative en cœur de village, rentabilité optimisable.

Un bien rare offrant une base saine et de multiples scénarios d'aménagement, permettant à chaque acquéreur de créer un projet sur mesure, qu'il soit personnel ou patrimonial.

Pour plus d'informations, contacter Florence au [Coordonnées masquées] ou par mail [Coordonnées masquées]
Les informations sur les risques auxquels ce bien est exposé sont disponibles sur le site Georisque : georisques. gouv. fr
Florence Cochard - EI - est Agent Commercial mandataire en immobilier, immatriculé au Registre Spécial des Agents Commerciaux du Tribunal de Commerce de annecy sous le n°891864357.
Siège social du mandant : effiCity, 48 avenue de Villiers - 75017 PARIS - Société par Actions Simplifiée, société au capital de 132 373,05 euros, immatriculée au RCS Paris 497 617 746 et titulaire de la Carte professionnelle CPI 75[Coordonnées masquées]02 025 - CCI Paris IDF - Caisse de Garantie : GALIAN Assurances 89 rue de la Boétie 75008 Paris
Voir plus

Référence: 202223
Honoraires d'agence de 5.02% à la charge de l'acquéreur
Barème des honoraires
DPE
A
B
C
D
E
F
G
GES
A
B
C
D
E
F
G

Prêt immobilier

Vous souhaitez connaître votre capacité d’emprunt et trouver le meilleur crédit immobilier ?
Réaliser une simulation gratuite

Maison à BOEGE
Maison à BOEGE
Maison à BOEGE
Maison à BOEGE
Maison à BOEGE
Maison à BOEGE
Maison à BOEGE
Maison à BOEGE
Maison à BOEGE
Maison à BOEGE
Maison à BOEGE
Maison à BOEGE
Maison à BOEGE
Maison à BOEGE
Maison à BOEGE
Ce site est protégé par reCAPTCHA la Politique de confidentialité et les Conditions d’utilisation de Google s’appliquent.
Obtenir un prêt immobilier au meilleur taux ?

En poursuivant votre navigation sans modifier vos paramètres, vous acceptez l'utilisation de cookies susceptibles de réaliser des statistiques de visite. Cliquez ici pour plus d'informations