Maison individuelle

— Eragny 95610 —
349 000 €
116 m² / 300 m²
4 pièces
parkingbalcon/terrassejardin

95610 ERAGNY - QUARTIER DES FONDS BRUNS - TERRASSE et JARDIN - CALME et LUMINEUX - GARAGE -
Efficity, l'agence qui estime votre bien en ligne, vous propose cette belle maison familiale de 4/5 pièces offrant 150 m² de surface totale (116,42 m² Loi Carrez), entièrement rénovée, avec terrasse, jardin et garage, idéalement située dans un quartier pavillonnaire calme et recherché d'Éragny.

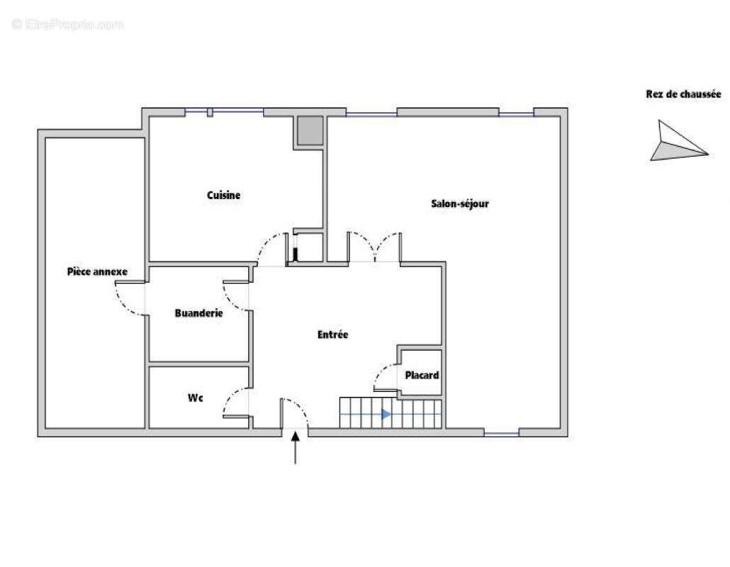
Elle se compose au rez-de-chaussée d'une entrée avec rangements, d'un vaste séjour lumineux de 33 m² agrémenté d'une cheminée, d'une cuisine dinatoire aménagée et équipée de 12,25 m², de WC séparés, ainsi que d'une grande remise de 15,66 m² offrant de belles possibilités de rangement.

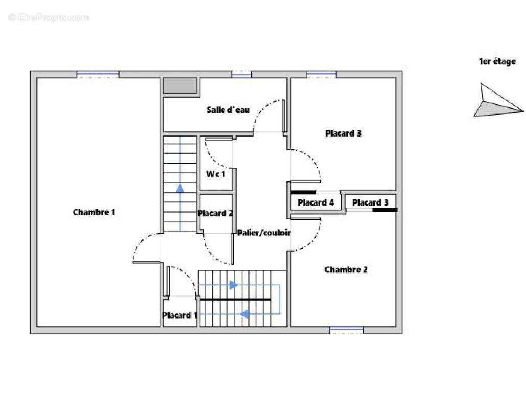
À l'étage, un palier dessert trois chambres spacieuses (10,13 m², 12 m² et 13 m²), toutes avec rangements, une salle de bains, des WC indépendants et un placard supplémentaire.

Les combles aménagés de 15,66 m² offrent la possibilité d'une quatrième chambre, d'un bureau ou d'un espace loisirs selon vos besoins.

Un garage fermé vient compléter ce bien.

Visite virtuelle disponible sur demande

Pour plus d'information contactez Vincent MIRANDE [Coordonnées masquées]
ou par mail [Coordonnées masquées]
Les informations sur les risques auxquels ce bien est exposé sont disponibles sur le site Georisque : georisques. gouv. fr
Vincent Mirande - EI - est Agent Commercial mandataire en immobilier, immatriculé au Registre Spécial des Agents Commerciaux du Tribunal de Commerce de Pontoise sous le n°819025230.
Siège social du mandant : effiCity, 48 avenue de Villiers - 75017 PARIS - Société par Actions Simplifiée, société au capital de 132 373,05 euros, immatriculée au RCS Paris 497 617 746 et titulaire de la Carte professionnelle CPI 75[Coordonnées masquées]02 025 - CCI Paris IDF - Caisse de Garantie : GALIAN Assurances 89 rue de la Boétie 75008 Paris
Voir plus

Référence: 195862
Honoraires d'agence de 2.65% à la charge de l'acquéreur
Barème des honoraires
DPE
A
B
C
D
E
F
G
GES
A
B
C
D
E
F
G

Prêt immobilier

Vous souhaitez connaître votre capacité d’emprunt et trouver le meilleur crédit immobilier ?
Réaliser une simulation gratuite

Maison à ERAGNY
Maison à ERAGNY
Maison à ERAGNY
Maison à ERAGNY
Maison à ERAGNY
Maison à ERAGNY
Maison à ERAGNY
Maison à ERAGNY
Maison à ERAGNY
Maison à ERAGNY
Maison à ERAGNY
Maison à ERAGNY
Maison à ERAGNY
Maison à ERAGNY
Maison à ERAGNY
Maison à ERAGNY
Maison à ERAGNY
Ce site est protégé par reCAPTCHA la Politique de confidentialité et les Conditions d’utilisation de Google s’appliquent.
Obtenir un prêt immobilier au meilleur taux ?

En poursuivant votre navigation sans modifier vos paramètres, vous acceptez l'utilisation de cookies susceptibles de réaliser des statistiques de visite. Cliquez ici pour plus d'informations