Bénéficiez des services de nos partenaires locaux soigneusement sélectionnés
pour vous accompagner dans votre parcours d'achat immobilier

Appartement 70m² à bordeaux

— Bordeaux 33000 —
241 500 €
70 m²
3 pièces
parkingbalcon/terrasseascenseur

Nos partenaires locaux
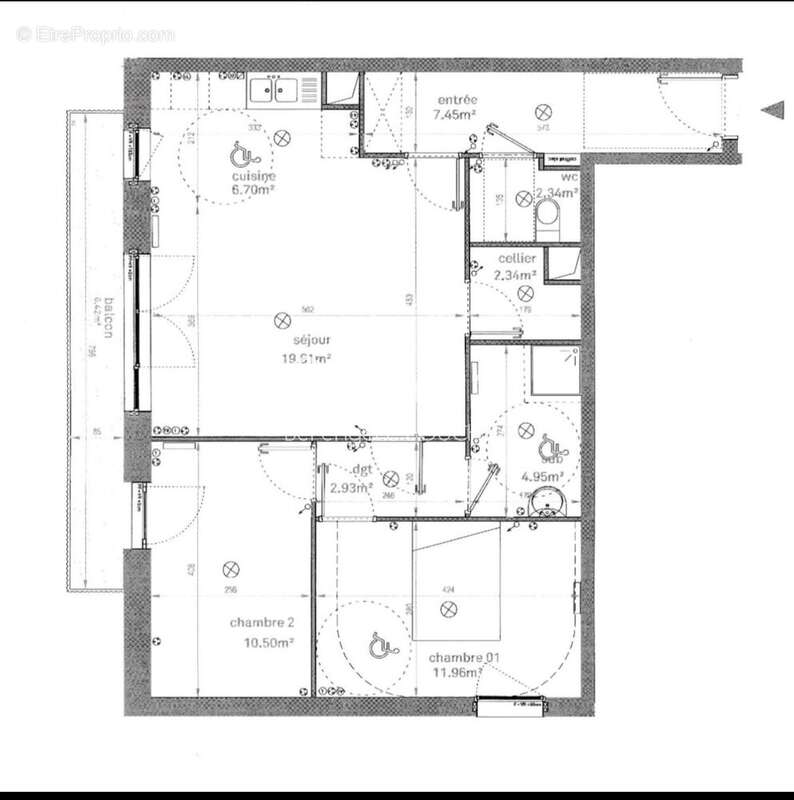
Bordeaux Cité du vin, au coeur d'une résidence récente sécurisée normes bbc DPE A, au pied du tram B Achard
Appartement offrant une grande pièce de vie lumineuse avec un balcon de 6 m² orienté Sud Est sans aucun vis à vis.
Le bien comporte deux chambres de 12 m² et 10 m², un cellier de 2 m², une salle d'eau et un wc indépendant.
Une place de parking complète le bien.
Chauffage collectif et eau chaude inclus dans les charges de copropriété
Les plus : Peinture, parquet et cuisine refaits pour la vente
Commerces de proximité, restaurants, cinéma, écoles supérieures
Vidéo sur demande

Le bien comprend 2 lots, et il est situé dans une copropriété de 150 lots (les charges courantes annuelles moyennes de copropriété sont de 2300 ¤ et le syndicat des copropriétaires ne fait pas l'objet d'une procédure citée à l'article L. 721-1 du code de la construction et de l'habitation).

Les informations sur les risques auxquels ce bien est exposé sont disponibles sur le site Géorisques : www.georisques.gouv.fr
Prix de vente : 241 500 ¤
Honoraires charge vendeur

Contactez votre conseiller SAFTI : Bérengère BOUCHET, Tél. : [Coordonnées masquées], E-mail : [Coordonnées masquées] - EI - Agent commercial immatriculé au RSAC de BORDEAUX sous le numéro 835 358 136.
Informations LOI ALUR :
Soumis au régime de copropriété.
Nombre de lots : 150.
Quote part annuelle(moyenne) : 2300 euros.
Honoraires charge vendeur. (gedeon_26118_32376576)
Voir plus

Référence: 1552961
Bien en copropriété. Nombre de lots : 150. Charges de copropriété : 2300 €.
Honoraires à la charge du vendeur.
Barème des honoraires
DPE
A
B
C
D
E
F
G
GES
A
B
C
D
E
F
G

Prêt immobilier

Vous souhaitez connaître votre capacité d’emprunt et trouver le meilleur crédit immobilier ?
Réaliser une simulation gratuite

Photo 1 - Appartement à BORDEAUX
Photo 1
Photo 2 - Appartement à BORDEAUX
Photo 2
Photo 3 - Appartement à BORDEAUX
Photo 3
Photo 4 - Appartement à BORDEAUX
Photo 4
Photo 5 - Appartement à BORDEAUX
Photo 5
Photo 6 - Appartement à BORDEAUX
Photo 6
Photo 7 - Appartement à BORDEAUX
Photo 7
Photo 8 - Appartement à BORDEAUX
Photo 8
Ce site est protégé par reCAPTCHA la Politique de confidentialité et les Conditions d’utilisation de Google s’appliquent.
Obtenir un prêt immobilier au meilleur taux ?

En poursuivant votre navigation sans modifier vos paramètres, vous acceptez l'utilisation de cookies susceptibles de réaliser des statistiques de visite. Cliquez ici pour plus d'informations