Bénéficiez des services de nos partenaires locaux soigneusement sélectionnés
pour vous accompagner dans votre parcours d'achat immobilier

Appartement duplex « comme une maison » 5 pièces- rosny-sous-bois, terrasse & jardin privatif

— Rosny-Sous-Bois 93110 —
486 256 €
107 m²
5 pièces
parkingbalcon/terrasse

Nos partenaires locaux
Découvrez ce superbe appartement de 107 m2, conçu comme une véritable maison de ville. Situé au cœur d’une zone pavillonnaire calme et recherchée, ce bien allie parfaitement confort moderne, verdure et vie citadine.
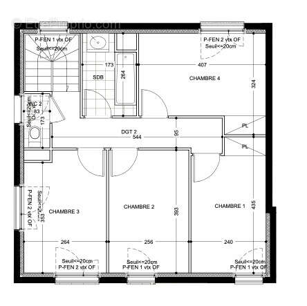
L'agencement a été optimisé pour offrir à chaque membre de la famille son propre espace de sérénité :
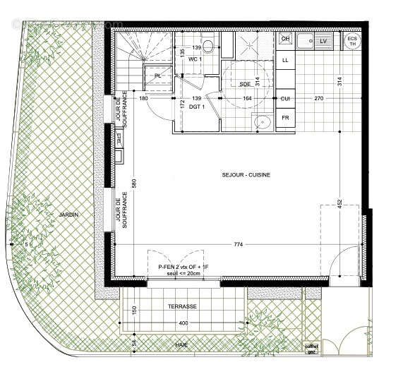
- Espace de Vie (30 m2) : Un séjour-cuisine ouvert et baigné de lumière naturelle grâce à de larges ouvertures. Il s'ouvre directement sur une terrasse privative de 12 m2offrant une vue apaisante sur le jardin partagé de la résidence.
- Côté Nuit : 4 chambres spacieuses, toutes tournées vers l'extérieur. La suite parentale dispose de son propre dressing sur mesure
- Salles d'eau : Une salle de bain moderne à l'étage pour les enfants et une salle d’eau avec douche à l'italienne au rez-de-chaussée
- Prestations : Nombreux rangements intégrés et placards personnalisés pour un intérieur fluide et dégagé.
Un Cadre de Vie Privilégié et Nature
 À deux pas du Parc Jean Decesari et du futur Parc Nature du Plateau d’Avron, idéal pour vos joggings ou vos sorties en famille.
Crèche au sein même de la résidence et école Henri Mondor à seulement 12 min à pied.
Les centres commerciaux Rosny 2 et Domus sont accessibles en moins de 10 min. Profitez également du golf, du stade olympique et d'une offre culturelle riche.
 Bus (arrêt 'Casanova') à 250 m.
RER E à 4 min : Rejoignez **Châtelet en seulement 24 min** (ligne directe).
Accès rapide aux axes A4 et A86.
Frais de notaire réduits Pas de frais d'agence - Photos non contractuelles
Contactez-nous dès aujourd'hui pour organiser une visite
 
 
Voir plus

Barème des honoraires
DPE
A
B
C
D
E
F
G
GES
A
B
C
D
E
F
G

Prêt immobilier

Vous souhaitez connaître votre capacité d’emprunt et trouver le meilleur crédit immobilier ?
Réaliser une simulation gratuite

Appartement à ROSNY-SOUS-BOIS
Appartement à ROSNY-SOUS-BOIS
Appartement à ROSNY-SOUS-BOIS
Appartement à ROSNY-SOUS-BOIS
Appartement à ROSNY-SOUS-BOIS
Appartement à ROSNY-SOUS-BOIS
Ce site est protégé par reCAPTCHA la Politique de confidentialité et les Conditions d’utilisation de Google s’appliquent.
Obtenir un prêt immobilier au meilleur taux ?

En poursuivant votre navigation sans modifier vos paramètres, vous acceptez l'utilisation de cookies susceptibles de réaliser des statistiques de visite. Cliquez ici pour plus d'informations