Bénéficiez des services de nos partenaires locaux soigneusement sélectionnés
pour vous accompagner dans votre parcours d'achat immobilier

Maison 9 pièces de 198 m2 en vente à douvaine

— Douvaine 74140 —
695 000 €
290 m² / 800 m²
9 pièces
parkingbalcon/terrassejardin

Nos partenaires locaux
Zefir vous propose à la vente cette charmante maison de 9 pièces, offrant une surface généreuse de 290 m², située dans le cadre paisible de Douvaine.

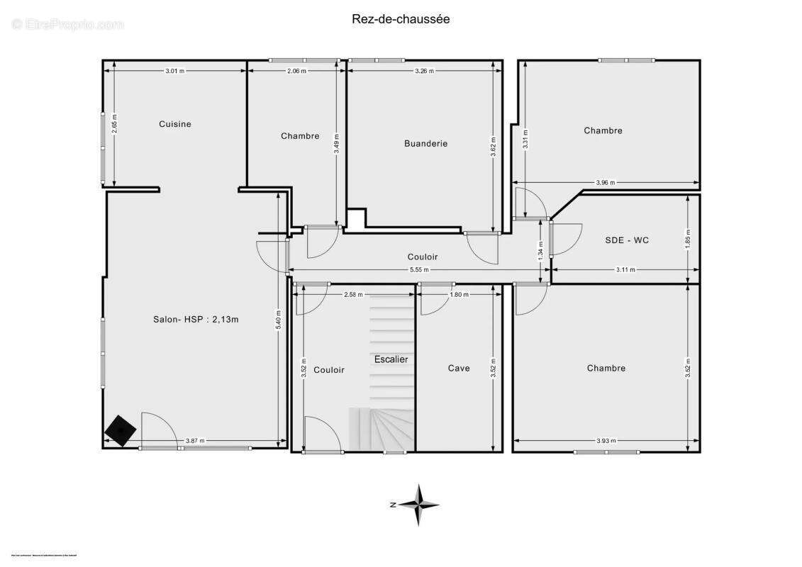
Dès l'entrée, vous serez séduit par l'agencement harmonieux de cette demeure. Au rez-de-chaussée, un vaste séjour vous accueille, accompagné de deux chambres spacieuses et d'un bureau qui peut être transformé en chambre supplémentaire. La cuisine fermée et équipée est idéale pour les amateurs de gastronomie, tandis qu'une salle d'eau avec WC intégrée complète ce niveau.

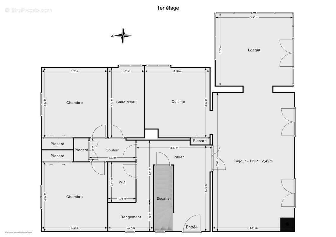
Le premier étage propose un second séjour lumineux, une cuisine séparée et équipée, ainsi que deux chambres confortables. Une salle d'eau et un WC séparé viennent parfaire cet espace de vie.

Au deuxième étage, une chambre spacieuse vous attend, ainsi qu'un grenier offrant une grande capacité de rangement, parfait pour stocker vos affaires saisonnières.

Parmi les nombreux atouts de cette maison, vous apprécierez la cave pour vos stockages, un espace vestiaire, une véranda spacieuse et des placards intégrés pour optimiser vos rangements. Le calme et la tranquillité des lieux, associés à la possibilité de personnaliser l'aménagement intérieur, offrent un potentiel d'extension intéressant.

La localisation est également un atout majeur : l'arrêt de bus Douvaine Mairie est à moins de 10 minutes à pied, et l'école primaire et le collège du Bas-Chablais sont accessibles en moins de 15 minutes à pied. Les commodités telles que boulangerie, pharmacie, opticien et supérette se trouvent à moins de 10 minutes à pied, tout comme le parc communal et les équipements sportifs. La zone commerçante du centre-ville de Douvaine est à seulement 600 mètres.

Caractéristiques techniques :
- DPE : C
- Taxe foncière : 1269€
- Mode de chauffage : Électrique et Bois
- Distribution eau : Électrique
- Surface du jardin : 800 m²

Les informations sur les risques auxquels ce bien est exposé sont disponibles sur le site Géorisques : www.georisques.gouv.fr.

Annonce présentée par Zefir.
Voir plus

Référence: 43c3dda9-6b85-4988-ba6b-230570
Honoraires à la charge du vendeur.
DPE
A
B
C
D
E
F
G
GES
A
B
C
D
E
F
G

Prêt immobilier

Vous souhaitez connaître votre capacité d’emprunt et trouver le meilleur crédit immobilier ?
Réaliser une simulation gratuite

Maison à DOUVAINE
Maison à DOUVAINE
Maison à DOUVAINE
Maison à DOUVAINE
Maison à DOUVAINE
Maison à DOUVAINE
Maison à DOUVAINE
Maison à DOUVAINE
Maison à DOUVAINE
Maison à DOUVAINE
Maison à DOUVAINE
Maison à DOUVAINE
Maison à DOUVAINE
Maison à DOUVAINE
Maison à DOUVAINE
Maison à DOUVAINE
Ce site est protégé par reCAPTCHA la Politique de confidentialité et les Conditions d’utilisation de Google s’appliquent.
Obtenir un prêt immobilier au meilleur taux ?

En poursuivant votre navigation sans modifier vos paramètres, vous acceptez l'utilisation de cookies susceptibles de réaliser des statistiques de visite. Cliquez ici pour plus d'informations