Appartement de 4 pièces de 77 m2 avec balcon situé à margency

— Margency 95580 —
266 000 €
77 m²
4 pièces
parkingbalcon/terrasse

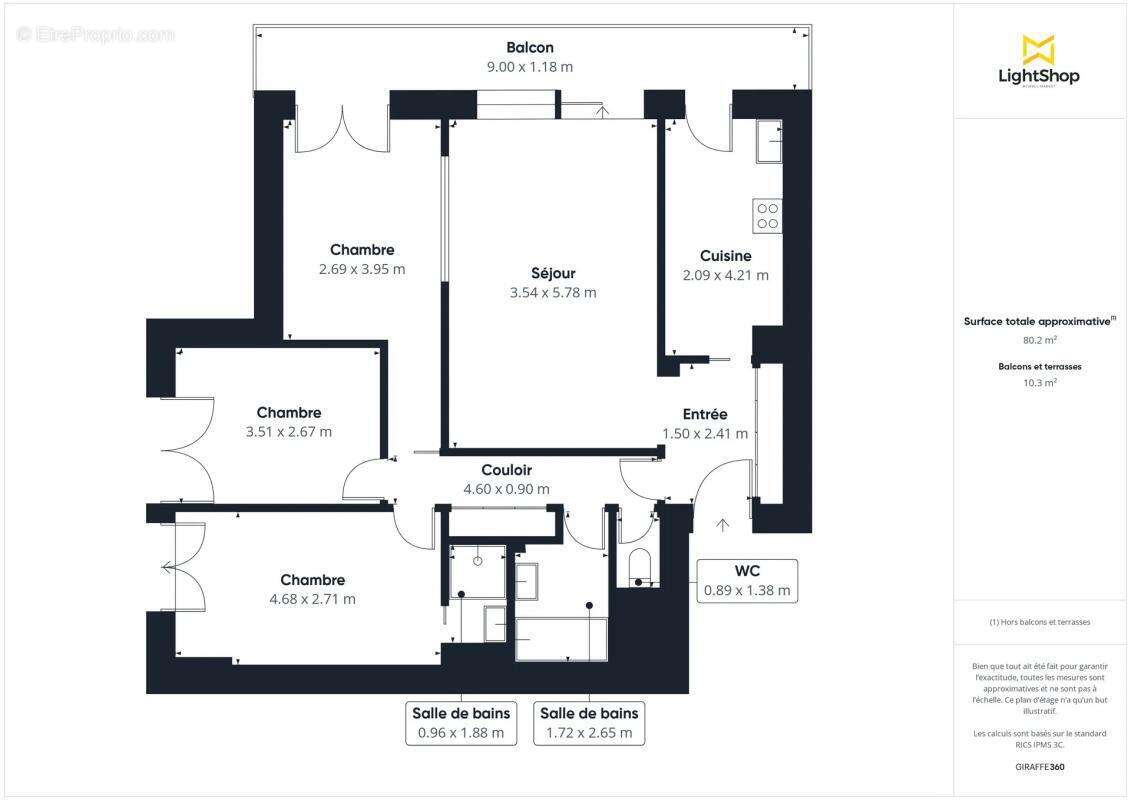
Zefir vous propose à la vente ce bel appartement familial de 4 pièces, d'une surface de 77 m², situé au cœur de Margency. Niché dans un environnement verdoyant, cet appartement offre un cadre de vie paisible et lumineux, idéal pour une famille en quête de tranquillité tout en restant proche des commodités.

L'appartement se compose d'un séjour baigné de lumière, d'une cuisine fonctionnelle, de trois chambres confortables, d'une salle de bain, d'une salle d'eau et d'un WC séparé. Le balcon de 6 m² constitue un atout supplémentaire, offrant un espace extérieur agréable pour profiter des beaux jours.

Parmi les nombreux atouts de ce bien, vous apprécierez le calme environnant, la luminosité des pièces, ainsi que la place de parking privative en sous-sol et la cave de 15 m² qui complète ce bien. De plus, les travaux d'isolation extérieure et de ravalement ont déjà été réalisés, assurant un confort optimal.

Côté localisation, vous serez à moins de 100 m des écoles maternelle et primaire, à 400 m du Collège/Lycée Bury, et à 800 m du Parc de la Mairie, parfait pour les promenades en famille.

Caractéristiques techniques :

- Taxe foncière : 1691€
- Appels de charge : 352€/mois
- DPE : E
- Mode de chauffage : Gaz
- Distribution eau : Gaz

Les informations sur les risques auxquels ce bien est exposé sont disponibles sur le site Géorisques : www.georisques.gouv.fr.

Annonce présentée par Zefir.
Voir plus

Référence: 5cbe4bcf-4684-40d4-a4d3-7af065
Bien en copropriété. Charges de copropriété : 352 €.
Honoraires à la charge du vendeur.
DPE
A
B
C
D
E
F
G
GES
A
B
C
D
E
F
G

Prêt immobilier

Vous souhaitez connaître votre capacité d’emprunt et trouver le meilleur crédit immobilier ?
Réaliser une simulation gratuite

Appartement à MARGENCY
Appartement à MARGENCY
Appartement à MARGENCY
Appartement à MARGENCY
Appartement à MARGENCY
Appartement à MARGENCY
Appartement à MARGENCY
Appartement à MARGENCY
Appartement à MARGENCY
Appartement à MARGENCY
Appartement à MARGENCY
Appartement à MARGENCY
Appartement à MARGENCY
Appartement à MARGENCY
Appartement à MARGENCY
Appartement à MARGENCY
Appartement à MARGENCY
Appartement à MARGENCY
Appartement à MARGENCY
Ce site est protégé par reCAPTCHA la Politique de confidentialité et les Conditions d’utilisation de Google s’appliquent.
Obtenir un prêt immobilier au meilleur taux ?

En poursuivant votre navigation sans modifier vos paramètres, vous acceptez l'utilisation de cookies susceptibles de réaliser des statistiques de visite. Cliquez ici pour plus d'informations