Bénéficiez des services de nos partenaires locaux soigneusement sélectionnés
pour vous accompagner dans votre parcours d'achat immobilier

Voir tous les partenaires locaux

Appartement 148m² à paris-16e

— Paris-16e 75016 —
2 100 000 €
148 m²
5 pièces
parkingbalcon/terrasseascenseur

Nos partenaires locaux
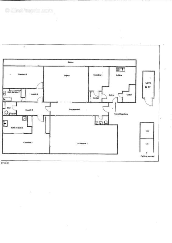
Découvrez cet appartement d'exception situé au coeur du prestigieux 16ème arrondissement de Paris, offrant un cadre de vie idéal pour les familles et les amateurs de confort. Niché au 9ème et dernier étage d'un immeuble moderne, cet espace de 148 m² se distingue par son agencement optimisé et sa luminosité exceptionnelle, le tout sans vis-à-vis.
Caractéristiques Principales :
Superficie : 148 m²
Terrasse : 50 m², parfaite pour des moments de détente en plein air
Balcon : 11 m², idéal pour profiter de la vue
Séjour spacieux : 34 m², ouvrant sur la terrasse et baigné de lumière
Chambres : 3, dont une suite parentale avec salle de bain privative
Salles de bain : 2, ainsi qu'une salle d'eau supplémentaire
Cuisine aménagée : Fonctionnelle et moderne, prête à accueillir vos talents culinaires
Rangements : De nombreux espaces de rangement intégrés pour un confort optimal
Cave : Pratique pour le stockage
Vue Imprenable : Cet appartement offre une vue panoramique sur les toits de Paris, permettant d'admirer les monuments emblématiques de la capitale, tels que la Tour Eiffel et le Sacré-Coeur. Profitez de cette perspective unique depuis votre terrasse ou votre balcon, idéal pour des soirées en famille ou entre amis.
Emplacement de Choix : Situé dans un quartier prisé du 16ème, vous bénéficierez d'un environnement calme et résidentiel, tout en étant à proximité des commodités, des écoles renommées et des transports en commun.
Ne manquez pas cette opportunité rare de vivre dans un appartement qui allie espace, confort et prestige. Contactez-nous dès aujourd'hui pour organiser une visite et laissez-vous séduire par ce bien d'exception.

Honoraires à la charge du vendeur. Dans une copropriété de 37 lots. Quote-part moyenne du budget prévisionnel 2 500 €/an. Aucune procédure n'est en cours. Classe énergie E, Classe climat E Montant estimé des dépenses annuelles d'énergie pour un usage standard : entre 4350.00 € et 5930.00 € sur les années 2021, 2022 et 2023 (abonnements compris). Les informations sur les risques auxquels ce bien est exposé sont disponibles sur le site Géorisques : georisques.gouv.fr.
Voir plus

Référence: VA2416-TIKVA
Bien en copropriété. Nombre de lots : 37. Charges de copropriété : 2500 €.
Honoraires à la charge du vendeur.
Barème des honoraires
DPE
A
B
C
D
E
F
G
GES
A
B
C
D
E
F
G

Prêt immobilier

Vous souhaitez connaître votre capacité d’emprunt et trouver le meilleur crédit immobilier ?
Réaliser une simulation gratuite

Appartement à PARIS-16E
Appartement à PARIS-16E
Appartement à PARIS-16E
Appartement à PARIS-16E
Appartement à PARIS-16E
Appartement à PARIS-16E
Appartement à PARIS-16E
Appartement à PARIS-16E
Ce site est protégé par reCAPTCHA la Politique de confidentialité et les Conditions d’utilisation de Google s’appliquent.
Obtenir un prêt immobilier au meilleur taux ?

En poursuivant votre navigation sans modifier vos paramètres, vous acceptez l'utilisation de cookies susceptibles de réaliser des statistiques de visite. Cliquez ici pour plus d'informations