Bénéficiez des services de nos partenaires locaux soigneusement sélectionnés
pour vous accompagner dans votre parcours d'achat immobilier

Asnieres- rue des bourgignons

— Asnieres-Sur-Seine 92600 —
262 500 €
44 m²
2 pièces

Nos partenaires locaux
Asnières-sur-Seine – Rue des Bourguignons

Au cœur du centre d’Asnières-sur-Seine, Victorine Immobilier vous présente ce charmant appartement situé au 2ᵉ et dernier étage d’un petit immeuble de la rue des Bourguignons, à proximité immédiate des commerces, des écoles. La gare SNCF la plus proche (2 minutes à pied) est celle de Bois Colombes, permettant de rejoindre Paris Saint-Lazare en 8 minutes.

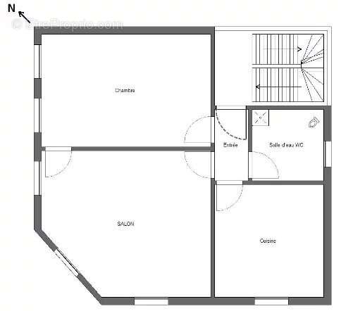
Caractéristiques du bien
Superficie loi Carrez : 44,00 m²
• Entrée : 1,70 m²
• Salle d’eau avec WC : 3,70 m²
• Cuisine : 8,12 m²
• Salon : 17,40 m²
• Chambre : 13,08 m²

L’appartement, lumineux et bien distribué, dispose de nombreuses ouvertures et d’une porte d’entrée blindée.

Les fenêtres en double vitrage PVC assurent une bonne isolation phonique et thermique.

Le chauffage est individuel au gaz, la chaudière ayant été remplacée en 2023.

Les parties communes de l’immeuble seront intégralement rénovées, travaux déjà votés et pris en charge par le vendeur.

Travaux récents (2023)
• Travaux de peinture et isolation des combles
• Installation d’une VMC
• Remplacement de la chaudière gaz
• Pose d’une porte blindée

Conditions locatives
L’appartement est vendu loué avec un bail vide se terminant le 10 juin 2027.
• Loyer mensuel : 887,26 €
• Charges : 40,00 €
• Loyer total : 927,26 € / mois
(Locataire en place depuis 2024)

Informations techniques
• DPE : E (272 kWh/m²/an)
• GES : E (56 kg CO₂/m²/an)
• Consommation énergétique estimée : 1 150 à 1 610 €/an
• Absence de termites (rapport du 17/10/2024)
• Présence possible d’amiante dans un conduit non visible (diagnostic sans risque identifié)
• Taxe foncière : 466 €

Transports à proximité
• Gare SNCF Bois Colombes (ligne L – Paris Saint-Lazare à 8 min)
• Métro ligne 13 – Gabriel Péri à 10 min à pied
• Bus : lignes 175, 140, 276, 165
• Accès rapide à la Défense et à Paris par les quais de Seine

Pas de procédure en cours.

Prix de vente
263 000 € FAI (honoraires à la charge du vendeur)

Pour organiser une visite, je suis joignable au +33 (0)6 50 50 03 06


Mentions légales
Victorine Immobilier – Vente • Location • Viager
Carte professionnelle n° CPI 69[Coordonnées masquées]31 034 – CCI de Lyon

Mail : [Coordonnées masquées]
www.victorine-immobilier.com
Voir plus

Référence: 86375960
DPE
A
B
C
D
E
F
G
GES
A
B
C
D
E
F
G

Prêt immobilier

Vous souhaitez connaître votre capacité d’emprunt et trouver le meilleur crédit immobilier ?
Réaliser une simulation gratuite

Appartement à ASNIERES-SUR-SEINE
Appartement à ASNIERES-SUR-SEINE
Appartement à ASNIERES-SUR-SEINE
Appartement à ASNIERES-SUR-SEINE
Appartement à ASNIERES-SUR-SEINE
Appartement à ASNIERES-SUR-SEINE
Appartement à ASNIERES-SUR-SEINE
Ce site est protégé par reCAPTCHA la Politique de confidentialité et les Conditions d’utilisation de Google s’appliquent.
Obtenir un prêt immobilier au meilleur taux ?

En poursuivant votre navigation sans modifier vos paramètres, vous acceptez l'utilisation de cookies susceptibles de réaliser des statistiques de visite. Cliquez ici pour plus d'informations