Appartement t4 avec balcon

— Gennevilliers 92230 —
370 899 €
80 m²
4 pièces
balcon/terrasseascenseur

Idéalement placé, proche des commerces, écoles, et transports.

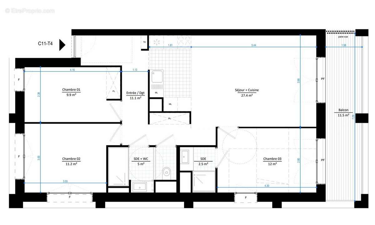
Ce bien, se compose :

- d'une entrée,
- de 3 chambres, dont une ayant accès sur balcon et avec salle de bain
- d'une salle de bain,
- d'un séjour/cuisine de plus de 27m2
- et d'un balcon de 11m2

Pour plus d'information, merci de nous contacter.

Référence: 92GENNCATELC11
Barème des honoraires
DPE
A
B
C
D
E
F
G
GES
A
B
C
D
E
F
G

Prêt immobilier

Vous souhaitez connaître votre capacité d’emprunt et trouver le meilleur crédit immobilier ?
Réaliser une simulation gratuite

Appartement à GENNEVILLIERS
Appartement à GENNEVILLIERS
Appartement à GENNEVILLIERS
Appartement à GENNEVILLIERS
Appartement à GENNEVILLIERS
Ce site est protégé par reCAPTCHA la Politique de confidentialité et les Conditions d’utilisation de Google s’appliquent.
Obtenir un prêt immobilier au meilleur taux ?

En poursuivant votre navigation sans modifier vos paramètres, vous acceptez l'utilisation de cookies susceptibles de réaliser des statistiques de visite. Cliquez ici pour plus d'informations