Bénéficiez des services de nos partenaires locaux soigneusement sélectionnés
pour vous accompagner dans votre parcours d'achat immobilier

Rdc/ 150m2 /issy-les-moulineaux – rue gabriel-péri

— Issy-Les-Moulineaux 92130 —
650 000 €
150 m²
3 pièces

Nos partenaires locaux
Issy-les-Moulineaux – Rue Gabriel-Péri

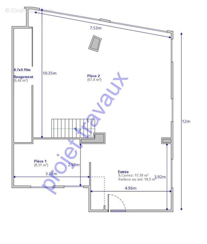
RDC sur rue + souplex modulable – Usage habitation ou professions libérales.

À vendre, spacieux plateau de 150,14 m² Carrez (RDC de 99,31 m² + souplex de 50,85m² – hauteur sous plafond 2,45 m).
Un bien rare et modulable, offrant de multiples possibilités d’aménagement, aussi bien pour un projet résidentiel que pour une activité professionnelle.

Configuration actuelle:
Plateau nu, sans cloison ni équipement — aménagement intégral à créer selon vos besoins.
Accès indépendant depuis la rue, avec interphone et possibilité d’installation d’une plaque professionnelle.

Copropriété et prestations:

ravalement et Isolation par l’extérieur réalisée en 2024

Parties communes entièrement rénovées

Porte d’entrée et interphone neufs

DPE : C

Charges mensuelles : 175 €

Options d’aménagement:
Version habitation :
Au RDC – grand espace de vie avec cuisine ouverte et îlot possible, deux chambres/bureaux, salle de bains et WC à créer.
Au souplex – grande salle polyvalente (TV, atelier, bureau), chambre avec dressing et rangements, salle de bains et WC à créer.

Version professions libérales :
Entrée indépendante sur rue.
Au RDC – open-space + quatre bureaux privatifs et espace sanitaire/rangement.
Au souplex – grande salle de réunion, espace archives/bureau d’appoint, local technique et rangements.

Emplacement recherché, à proximité immédiate des commerces et transports (métro ligne 12 à 8 min à pied).
-Pas d’accès PMR.

Photos et visuels 3D disponibles sur demande – fort potentiel d’aménagement.
Voir plus

Référence: 86615064
DPE
A
B
C
D
E
F
G

Prêt immobilier

Vous souhaitez connaître votre capacité d’emprunt et trouver le meilleur crédit immobilier ?
Réaliser une simulation gratuite

Commerce à ISSY-LES-MOULINEAUX
Commerce à ISSY-LES-MOULINEAUX
Commerce à ISSY-LES-MOULINEAUX
Commerce à ISSY-LES-MOULINEAUX
Commerce à ISSY-LES-MOULINEAUX
Commerce à ISSY-LES-MOULINEAUX
Commerce à ISSY-LES-MOULINEAUX
Commerce à ISSY-LES-MOULINEAUX
Commerce à ISSY-LES-MOULINEAUX
Commerce à ISSY-LES-MOULINEAUX
Commerce à ISSY-LES-MOULINEAUX
Commerce à ISSY-LES-MOULINEAUX
Commerce à ISSY-LES-MOULINEAUX
Commerce à ISSY-LES-MOULINEAUX
Commerce à ISSY-LES-MOULINEAUX
Commerce à ISSY-LES-MOULINEAUX
Commerce à ISSY-LES-MOULINEAUX
Ce site est protégé par reCAPTCHA la Politique de confidentialité et les Conditions d’utilisation de Google s’appliquent.
Obtenir un prêt immobilier au meilleur taux ?

En poursuivant votre navigation sans modifier vos paramètres, vous acceptez l'utilisation de cookies susceptibles de réaliser des statistiques de visite. Cliquez ici pour plus d'informations