Bénéficiez des services de nos partenaires locaux soigneusement sélectionnés
pour vous accompagner dans votre parcours d'achat immobilier

Appartement 120m² à toulouse

— Toulouse 31300 —
640 000 €
121 m²
4 pièces
balcon/terrasseascenseur

Nos partenaires locaux
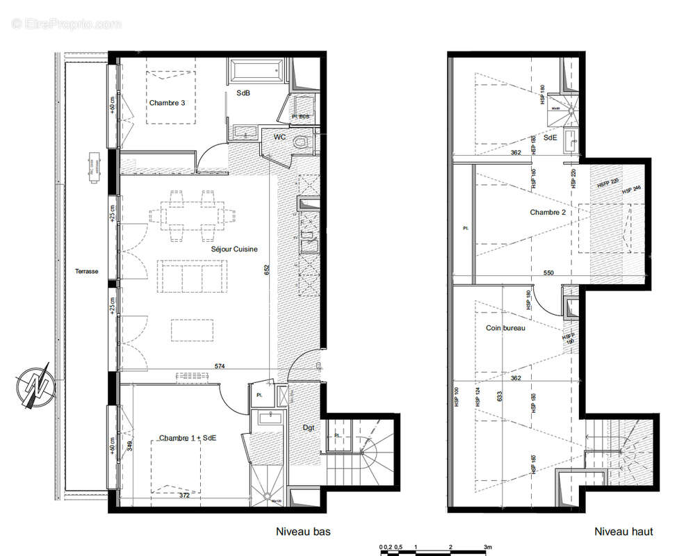
Toulouse Fer à cheval / St Cyprien, Découvrez une adresse d'exception à Toulouse au coeur du quartier emblématique de Saint-Cyprien - Fer à Cheval. 102,57m2 en carrez pour 120,63m2 au sol Appartement 4 pièces en duplex avec sur le niveau bas un séjour cuisine de 36,24m2 sur terrasse de 15,01m2 exposée sud ouest, 2 chambres avec salle d'eau privative pour 15,67 et 13,80m2 et un wc indépendant. A l'étage sous combles 1 chambre de 13,48m2 , un espace bureau de 12,32m2 et une salle d'eau. LABEL RT2012 - prestations de qualité L'appartement vous offre un cadre de vie privilégié dans l'un des plus anciens quartiers de la Ville Rose. A quelques pas de la Prairie des Filtres et des quais de la Garonne, vous vivrez dans une ambiance villageoise proche de toutes les commodités. Marché, espaces verts et hypercentre sont accessibles à pied ou à vélo. Belle copropriété : façade en briques rouges, menuiseries élégantes et grands espaces lumineux. Possibilité d'achat de parking en sus du prix (nous consulter) BIEN NON SOUMIS AU DPE Pour tout renseignement : Féänor MAMEO [Coordonnées masquées]
Voir plus

Référence: IDY-52
Honoraires à la charge du vendeur.

Prêt immobilier

Vous souhaitez connaître votre capacité d’emprunt et trouver le meilleur crédit immobilier ?
Réaliser une simulation gratuite

Appartement à TOULOUSE
Appartement à TOULOUSE
Ce site est protégé par reCAPTCHA la Politique de confidentialité et les Conditions d’utilisation de Google s’appliquent.
Obtenir un prêt immobilier au meilleur taux ?

En poursuivant votre navigation sans modifier vos paramètres, vous acceptez l'utilisation de cookies susceptibles de réaliser des statistiques de visite. Cliquez ici pour plus d'informations