Bénéficiez des services de nos partenaires locaux soigneusement sélectionnés
pour vous accompagner dans votre parcours d'achat immobilier

Dernier etage et grande terrasse

— Quint-Fonsegrives 31130 —
450 000 €
100 m²
4 pièces
parkingbalcon/terrasseascenseur

Nos partenaires locaux
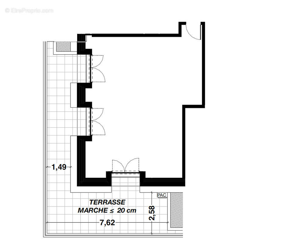
Quint-Fonsegrives quartier Ribaute, En dernier étage d'une copropriété résolument contemporaine on vous propose ici un bel appartement T4 duplex avec une grande terrasse de 39,03m2. Composé pour la partie basse d'un séjour cuisine de 44,99m2 exposé sud ouest sur terrasse de 39,03m2 et une salle d'eau-wc. Le coin nuit se trouve à l'étage avec 3 chambres de 10,80 , 11,52 et 12,61m2, une salle de bain, un wc indépendant. 2 places de parking en sous-sol Prestations soignées : isolation renforcée, PAC individuelle, ballon thermodynamique, carrelage 45*45, parquet stratifié dans les chambres, volets roulants électriques, peinture lisse ..... Même si Quint-Fonsegrives côtoie presque directement l'animation urbaine, elle demeure une ville à l'atmosphère douce, où l'environnement résidentiel est synonyme de qualité de vie. Son centre-ville dynamique, impulsé par une diversité d'activités culturelles et sportives, attire les jeunes familles en quête de convivialité et de bien-être. Les infrastructures éducatives ne manquent pas, avec une école maternelle et primaire, le collège Élisabeth Badinter, le lycée Pierre-Paul Riquet à Saint-Orens de- Gameville et bien sûr, le campus Entiore de la prestigieuse Toulouse Business School. Quant aux besoins de santé, la présence de la clinique La Croix du Sud, sortie de terre il y a à peine plus de 10 ans, garantit aux résidents un accès rapide, moderne et efficace aux soins. En termes de loisirs, Quint-Fonsegrives révèle une vaste palette d'activités. Du parc de la Saune aux complexes sportifs Patrick Pepi et Pierre Izard, les possibilités sont multiples. La commune, qui a d'ailleurs été labellisée ? Ville Active et Sportive ' pour la seconde fois, incite ses habitants à cultiver un mode de vie sain et dynamique. Les événements locaux rythment également la vie communautaire, avec le marché plein vent chaque samedi matin sur la Place Bergerot, les marchés artisanaux nocturnes trois fois par an, le marché aux fleurs et le célèbre festival Fiestimômes, dédié aux jeunes et rassemblant familles et amis autour de jeux, spectacles et concerts. BIEN NON SOUMIS AU DPE Pour tout renseignement : Féänor MAMEO [Coordonnées masquées]
Voir plus

Référence: EMP-A402
Honoraires à la charge du vendeur.

Prêt immobilier

Vous souhaitez connaître votre capacité d’emprunt et trouver le meilleur crédit immobilier ?
Réaliser une simulation gratuite

Appartement à QUINT-FONSEGRIVES
Appartement à QUINT-FONSEGRIVES
Appartement à QUINT-FONSEGRIVES
Appartement à QUINT-FONSEGRIVES
Ce site est protégé par reCAPTCHA la Politique de confidentialité et les Conditions d’utilisation de Google s’appliquent.
Obtenir un prêt immobilier au meilleur taux ?

En poursuivant votre navigation sans modifier vos paramètres, vous acceptez l'utilisation de cookies susceptibles de réaliser des statistiques de visite. Cliquez ici pour plus d'informations