Maison neuve

— Pibrac 31820 —
386 000 €
112 m² / 177 m²
5 pièces
parkingbalcon/terrassejardin

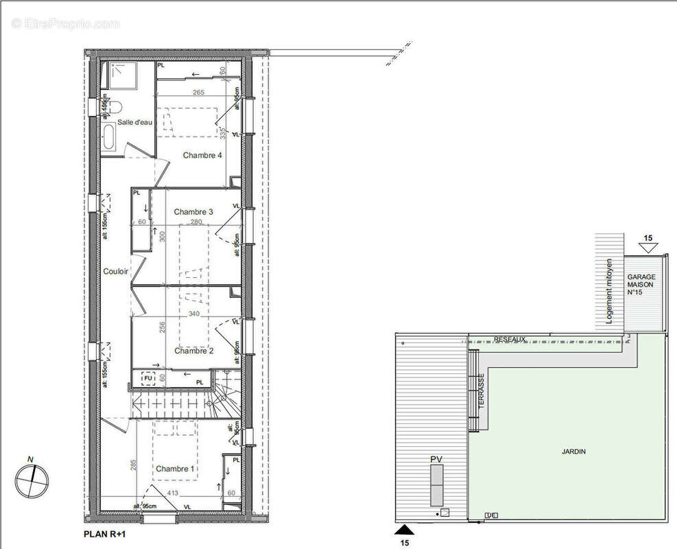
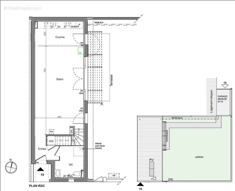
Pibrac Belle maison moderne dans un lotissement en quinconce où l'intimité de tous reste préservée. En duplex la maison est composée pour la partie basse d'un garage et sa place de midi, une entrée, une salle d'eau-wc, et le séjour cuisine de 44,06m2 exposé est sur terrasse de 13,24m2 prolongée du jardin de 176,70m2. A l'étage on retrouve 4 chambres avec placard de 10,14, 10,17, 10,47 et 12,39m2 et une salle d'eau-wc. Prestations soignées : Label RT2012, carrelage 45*45 au sol, parquet dans les chambres, peinture lisse, volets roulants motorisés, pompe à chaleur et ballon d'eau chaude solaire, panneau photovoltaïque pour de l'auto-consommation ...... Empreinte de charme, Pibrac arbore les jolies couleurs de la région avec caractère. Comptant plusieurs joyaux patrimoniaux rivalisant de beauté, dont la basilique Sainte- Germaine, emblème de la ville, elle séduit tant par son héritage historique que par son capital naturel. Située à la lisière de la forêt de Bouconne (2 378 hectares de forêt), cet espace de nature et sa base de loisirs proposent de nombreuses activités sportives et aires de jeux pour toute la famille. Pibrac est une commune séduisante auquel il n'est pas difficile de s'attacher. Elle compte plusieurs biens patrimoniaux dont le Château de Pibrac, classé monument historique. Reliée aux communes limitrophes (Colomiers, L'Isle-Jourdain, Auch, Toulouse) grâce à sa gare desservie quotidiennement par des TER, mais aussi à la ligne 32 du réseau de bus Tisséo, Pibrac offre un accès rapide et efficace à tout type d'infrastructures. La commune est dotée de plusieurs groupes scolaires (Bois de la Barthe, Maurice Fonvieille, Saint-Jean-Baptistede- la-Salle) et d'un lycée général et technologique. Ses multiples établissements culturels, tel le Théâtre Musical, la médiathèque, les deux complexes sportifs, le centre social et culturel Alice et Louis Rivals ou encore le marché Plein Vent, réputé au-delà des limites de la ville, participent à la richesse et à l'animation de Pibrac. Terre de rencontres et d'échanges, la commune propose à ses habitants une multitude de manifestations ; La Mekanik du rire, festival de rue autour du rire et du partage, ou encore les Pyrénicimes consacrées à la montagne. BIEN NON SOUMIS AU DPE Pour tout renseignement : Féänor MAMEO [Coordonnées masquées]
Voir plus

Référence: SCA-V09

Prêt immobilier

Vous souhaitez connaître votre capacité d’emprunt et trouver le meilleur crédit immobilier ?
Réaliser une simulation gratuite

Maison à PIBRAC
Maison à PIBRAC
Maison à PIBRAC
Maison à PIBRAC
Maison à PIBRAC
Maison à PIBRAC
Maison à PIBRAC
Maison à PIBRAC
Maison à PIBRAC
Maison à PIBRAC
Maison à PIBRAC
Maison à PIBRAC
Maison à PIBRAC
Maison à PIBRAC
Maison à PIBRAC
Maison à PIBRAC
Maison à PIBRAC
Maison à PIBRAC
Ce site est protégé par reCAPTCHA la Politique de confidentialité et les Conditions d’utilisation de Google s’appliquent.
Obtenir un prêt immobilier au meilleur taux ?

En poursuivant votre navigation sans modifier vos paramètres, vous acceptez l'utilisation de cookies susceptibles de réaliser des statistiques de visite. Cliquez ici pour plus d'informations